Luxury Real Estate Group Boston > Boston > 33 Cordis Street

LRG Boston

(617) 233-5800

355 Boylston St

Boston, Ma 02116

33 Cordis Street

Boston, MA

Property Description

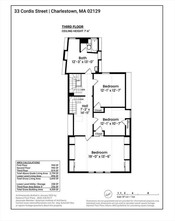
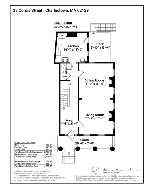
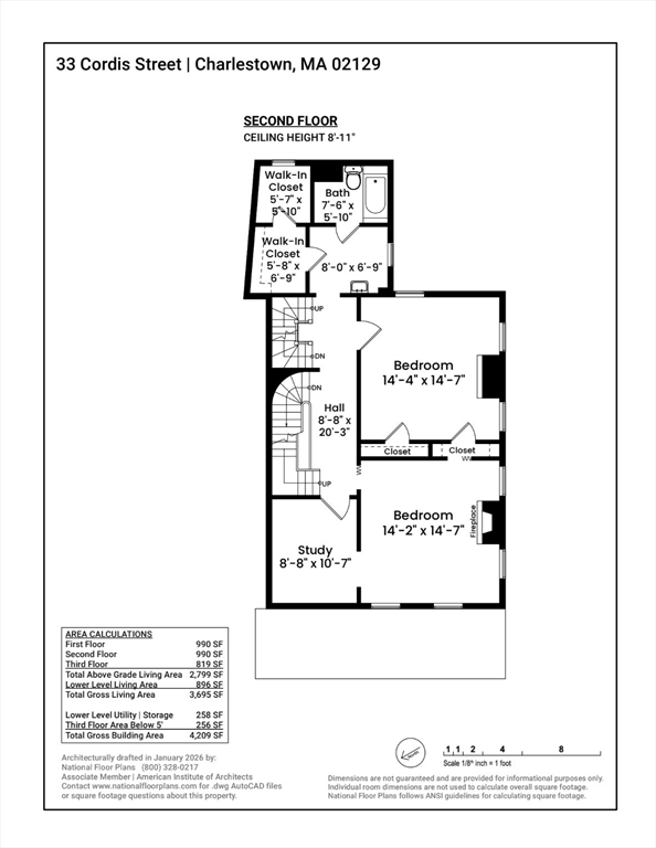
Situated on a premier gas-lit street in Charlestown’s coveted Monument Area near the Bunker Hill Monument, 33 Cordis Street is a striking 4-column Greek Revival blending historic charm with exceptional potential. Currently used as a single-family but deeded as a two-family, it offers flexible living across four levels with generous bedrooms, expansive living spaces, and views of downtown Boston and the Zakim Bridge. Set on an oversized lot with rare driveway parking for up to four cars. IDEAL FOR AN END USER TO RENOVATE AND CREATE THEIR DREAM HOME or for development. Sold as-is, with potential for a 1,800–2,000 SF rear addition (~6,400 SF total). Potential for 2–3 townhomes (buyer to verify). Pending Landmark status. SEE ATTACHED NATIONAL FLOOR PLANS & INITIAL ARCHITECT ZONING STUDY.

offered at

$2,595,000

  • Status: New
  • Listing ID: 73499063
  • Bedrooms: 4
  • Full Baths: 3
  • Living Area: 4,209 sqft Convert
  • Lot Size: 3,900 sqft Convert
  • Acres: 0.09

Additional Details

Type: Multi-Family, Multi Family

Area: Charlestown

Zip Code: 02129

Levels: 4

Parking

Garage Capacity: 4

Parking Spaces: 4

Rooms and Dimensions

Total Units: 2

Total Floors: 4

Total Rooms: 10

Contact: LRG Boston at (617) 233-5800

LRGBOSTON.COM

355 Boylston St. Boston, MA 02116

Map

Photos