Luxury Real Estate Group Boston > Westport > 171 Pine Hill Rd

LRG Boston

(617) 233-5800

355 Boylston St

Boston, Ma 02116

171 Pine Hill Rd

Westport, MA

Property Description

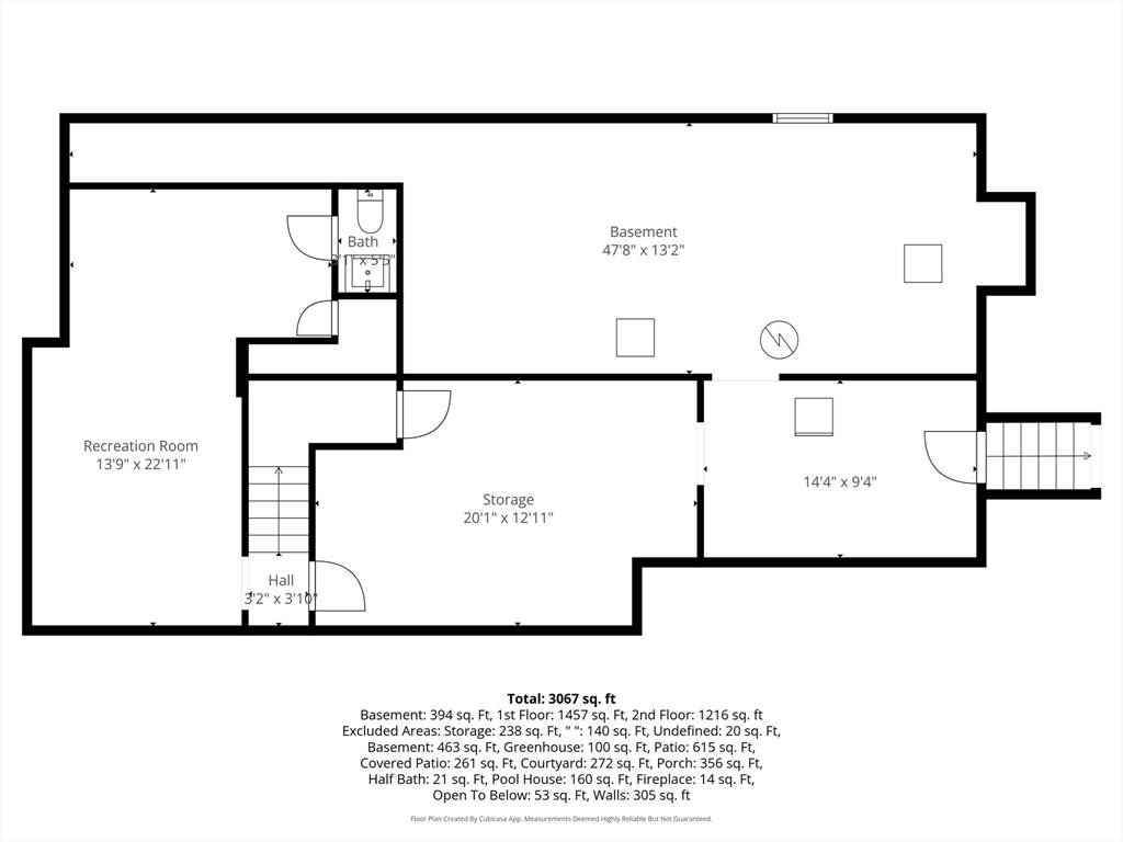
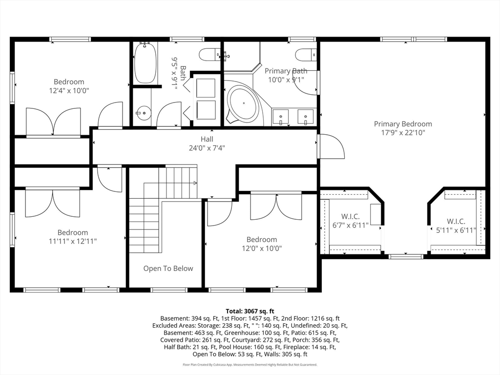
Welcome to Stone Pony Gardens, a stunning 2 parcel lot consisting of a 24.5-acre estate set on Everett Cove Point on the Westport River, offering rare privacy & a potential buildable lot. This beautifully designed home features over 2,600 SF of living space with high-end finishes throughout. Home features 4 bedrooms, 2 full & 2 half baths, exceptional entertaining spaces, sunroom & a bonus space in the basement. (Floor plans attached). A separate annex building being used as a home office & studio apartment, offering flexible living options included. Outside, enjoy a resort-like setting with an in-ground saltwater pool, pool house, outdoor kitchen, & meditation garden. Equestrian amenities include a 3-stall barn with tack room or string lights to create your own party barn. The grounds are truly special with walking trails, weeping willows, greenhouse, lavender fields, rose bushes and easy care well-established perennial gardens - an extraordinary property blending luxury & nature.

offered at

$2,600,000

  • Status: Price Change
  • Listing ID: 73500021
  • Bedrooms: 4
  • Full Baths: 2
  • Half Baths: 2
  • Living Area: 2,936 sqft Convert
  • Lot Size: 1,070,357 sqft Convert
  • Acres: 24.57

Additional Details

Type: Single Family, Single Family Residence

Zip Code: 02790

Parking

Garage: 4

Garage Capacity: 4

Parking: Attached,Off Street,Garage

Parking Spaces: 16

Rooms and Dimensions

Total Rooms: 10

Has Basement: Yes

Contact: LRG Boston at (617) 233-5800

LRGBOSTON.COM

355 Boylston St. Boston, MA 02116

Map

Photos