Luxury Real Estate Group Boston > Boston > 45 Old Harbor

LRG Boston

(617) 233-5800

355 Boylston St

Boston, Ma 02116

45 Old Harbor

Boston, MA

Property Description

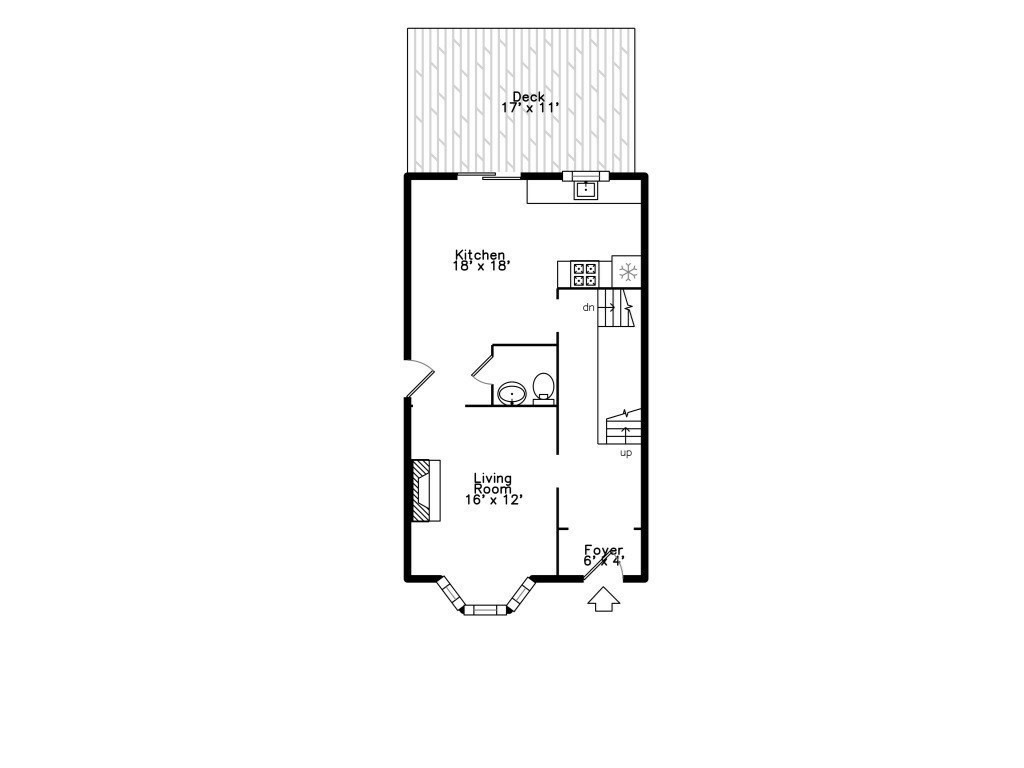
Available for a September 1st lease, this recently renovated Victorian rowhouse in South Boston’s Thomas Park area offers four levels of living with 6 bedrooms plus a dedicated office and 3 full bathrooms. The home is partially furnished and includes WiFi and an in-unit washer and dryer for added convenience. The kitchen features stainless steel appliances, and the layout provides generously sized bedrooms, abundant natural light, and impressive city views throughout. Outdoor space is a standout with a private porch, garden area, elevated back deck, and fenced-in backyard, offering rare outdoor living in an urban setting. Located at 45 Old Harbor Street, the property is close to local beaches, parks, dining, Broadway, and public transit, combining space, functionality, and accessibility in one of South Boston’s established neighborhoods.

offered at

$9,600

  • Listing ID: 73500267
  • Bedrooms: 7
  • Full Baths: 2
  • Half Baths: 1
  • Living Area: 2,178 sqft Convert
  • Lot Size: 2,226 sqft Convert

Additional Details

Type: Rental, Single Family Residence

Area: South Boston

Zip Code: 02127

Unit Level: 1

Rooms and Dimensions

Total Rooms: 10

Contact: LRG Boston at (617) 233-5800

LRGBOSTON.COM

355 Boylston St. Boston, MA 02116

Map

Photos