Luxury Real Estate Group Boston > Taunton > 58 Summer St

LRG Boston

(617) 233-5800

355 Boylston St

Boston, Ma 02116

58 Summer St

Taunton, MA

Property Description

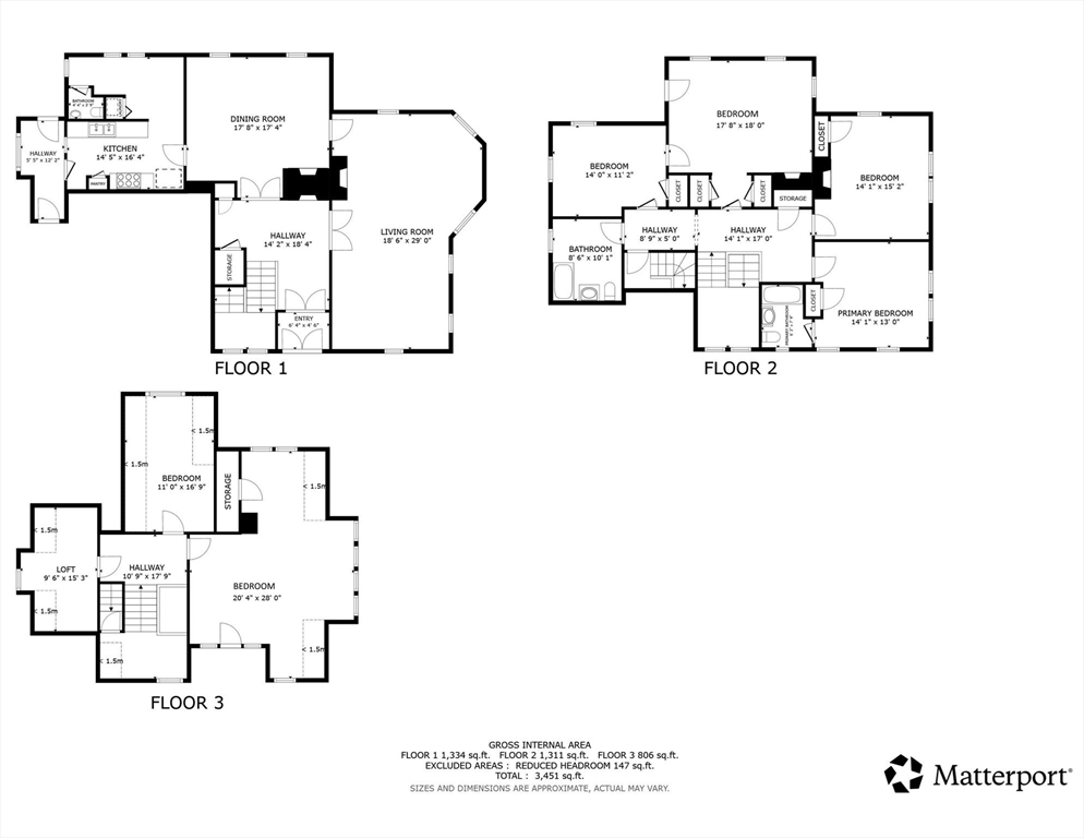
Timeless Victorian manor featuring 7 beds, 3 full baths and 2 half baths w/ endless possibilities! The grand foyer w/ fireplace leads to the formal living and dining rooms. The chef's kitchen showcases white cabinets and stainless steel appliances w/ a 6 burner gas range. The primary w/ ensuite bath and 3 bedrooms are located on the 2nd level w/ 2 more on the 3rd. Rich in character, the home features hardwood floors throughout, a beautiful stained glass window, dual staircases, multiple balconies, 5 fireplaces, custom built-ins, and abundant closet space. Recently updated Burnham Alpine Gas Heating System (2020) and a Dunkirk hot water tank (2020). Ideal for multi-generational living with a full in-law set up or guest space that flows seamlessly with the rest of the house. The private yard completes this exceptional property—truly a rare find with versatility, space and charm! Conveniently located close to all amenities with the new commuter rail downtown, making commuting a breeze!

offered at

$875,000

  • Listing ID: 73500413
  • Bedrooms: 7
  • Full Baths: 3
  • Half Baths: 2
  • Living Area: 4,693 sqft Convert
  • Lot Size: 19,602 sqft Convert
  • Acres: 0.45

Additional Details

Type: Single Family, Single Family Residence

Zip Code: 02780

Parking

Garage Capacity: 8

Parking: Paved Drive, Off Street, Paved

Parking Spaces: 8

Rooms and Dimensions

Total Rooms: 12

Contact: LRG Boston at (617) 233-5800

LRGBOSTON.COM

355 Boylston St. Boston, MA 02116

Map

Photos