Luxury Real Estate Group Boston > Everett > 71 Winslow St

LRG Boston

(617) 233-5800

355 Boylston St

Boston, Ma 02116

71 Winslow St

Everett, MA

Property Description

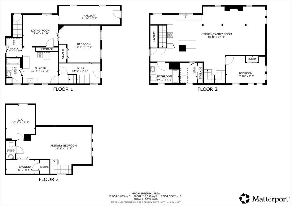
Incredible location! This spacious two-family home offers a total of 10 rooms, 3 bedrooms, and 2.5 baths, providing flexibility for both investors and owner-occupants. The property features a garage along with additional side by side tandem parking, a backyard, and new vinyl siding for added curb appeal. New Roof, New Windows, New Hot Water Heaters, New Flooring, and many more! Each unit has its own separate entrance. The upper unit boasts a massive open-concept layout with a kitchen and living area, pantry, laundry room, bathroom, and bedroom on the main level. The second level of this unit includes a primary bedroom with a half bath and an additional space ideal for an office or walk-in closet.The lower unit offers a comfortable layout with a bedroom, living room, foyer, laundry area, and full bathroom. A great opportunity in a highly desirable location, close to major routes, shopping, restaurants, and public transportation. Don't miss out!

offered at

$899,986

  • Status: New
  • Listing ID: 73501453
  • Bedrooms: 3
  • Full Baths: 2
  • Half Baths: 1
  • Living Area: 2,492 sqft Convert
  • Lot Size: 3,563 sqft Convert
  • Acres: 0.08

Additional Details

Type: Multi-Family, Multi Family

Zip Code: 02149

Levels: 3

Parking

Garage: 1

Garage Capacity: 7

Parking: Paved Drive, Off Street

Parking Spaces: 7

Rooms and Dimensions

Total Units: 2

Total Floors: 3

Total Rooms: 10

Contact: LRG Boston at (617) 233-5800

LRGBOSTON.COM

355 Boylston St. Boston, MA 02116

Map

Photos