Luxury Real Estate Group Boston > Boston > 303 Columbus Avenue #306

LRG Boston

(617) 233-5800

355 Boylston St

Boston, Ma 02116

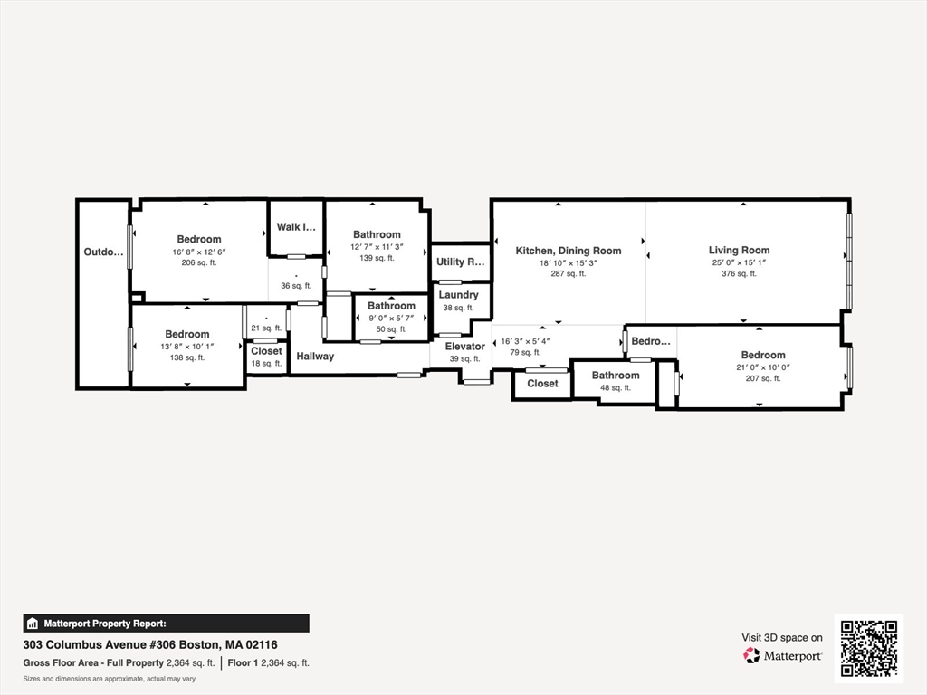
303 Columbus Avenue #306

Boston, MA

Property Description

A Stunningly renovated 2,100+ sq ft Back Bay residence with direct elevator access. This sun-drenched, open-concept space features updated wide-plank red oak floors that seamlessly connect the living, dining, & 3 bedrooms, all on one floor. A stylish bedroom or office, featuring an ensuite bath, is positioned at the front of the property. For enhanced privacy, the master suite and third bedroom are thoughtfully situated within the interior of the condominium. Modern amenities include a new YGK German kitchen, boasting Miele appliances, innovative PITT gas burners, and a dramatic 10’ quartz waterfall island. Add a new fireplace, electric roller shades, Lutron smart lighting, Nest thermostat, and in-unit laundry for good measure. A deeded, garage parking space with a power outlet for EV charger hook-up, and separate storage space is also included. The Bryant has an attentive concierge, a private gym, and is minutes to Newbury Street boutiques, Award-winning dining and Back Bay Station!

offered at

$3,300,000

  • Status: New
  • Listing ID: 73501767
  • Bedrooms: 3
  • Full Baths: 3
  • Living Area: 2,146 sqft Convert

Additional Details

Type: Condo, Condominium

Style: Mid-Rise

Area: Back Bay

Zip Code: 02116

HOA Fee: $2,244

Living Levels: 1

Unit Level: 3

Parking

Garage: 1

Garage Capacity: 1

Parking: Under, Heated Garage, Deeded, Assigned

Parking Spaces: 1

Rooms and Dimensions

Total Units: 50

Total Floors: 1

Total Rooms: 5

Contact: LRG Boston at (617) 233-5800

LRGBOSTON.COM

355 Boylston St. Boston, MA 02116

Map

Photos