Luxury Real Estate Group Boston > Wakefield > 293 Albion St

LRG Boston

(617) 233-5800

355 Boylston St

Boston, Ma 02116

293 Albion St

Wakefield, MA

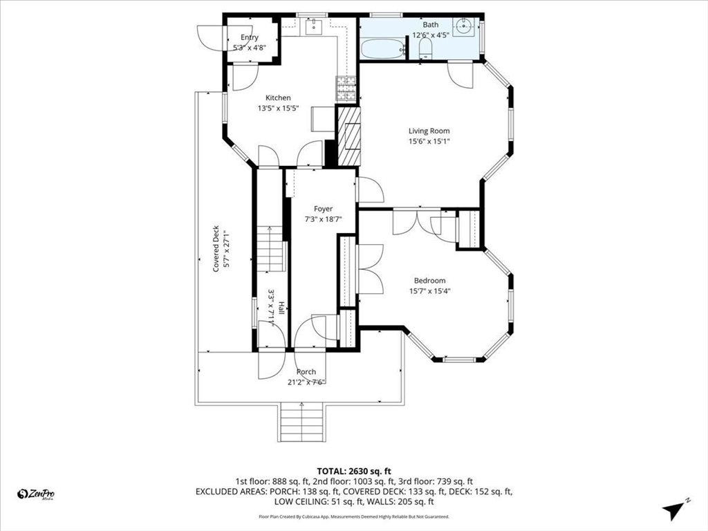
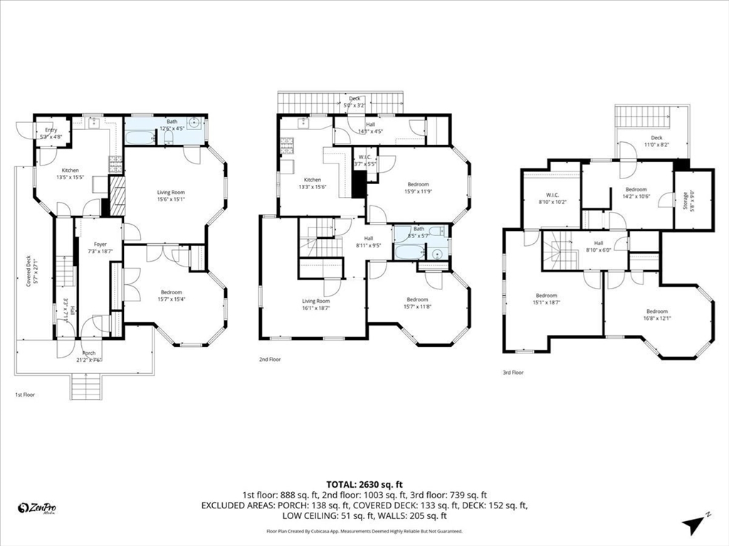
Property Description

Attention savvy investors and owner-occupants! Discover this incredible value-add opportunity at 293 Albion St, a rare two-family home situated in the highly desirable West Side of Wakefield. This property offers a wealth of classic character with hardwood floors throughout and soaring high ceilings that create an airy, spacious feel. The first-floor unit features three large rooms and one bedroom. The massive second-floor unit is truly exceptional, offering nine rooms and five bedrooms, making it perfect for a large household or an investor looking to maximize rental returns in a high-demand market. The location is unbeatable for commuters, with close proximity to the Commuter Rail station, the Wakefield/Reading bus stop, and quick access to Routes 128/95 and 93. Enjoy the lifestyle benefits of being moments away from scenic Lake Quannapowitt and the vibrant shopping and dining in downtown Wakefield. Bring your vision and custom updates to unlock the full potential of this expansive W

offered at

$849,000

  • Status: New
  • Listing ID: 73501978
  • Bedrooms: 6
  • Full Baths: 2
  • Living Area: 1,942 sqft Convert
  • Lot Size: 3,067 sqft Convert

Additional Details

Zip Code: 01880

Parking

Garage Capacity: 2

Contact: LRG Boston at (617) 233-5800

LRGBOSTON.COM

355 Boylston St. Boston, MA 02116

Map

Photos