Luxury Real Estate Group Boston > Westminster > 12 Lakewood Park Road

LRG Boston

(617) 233-5800

355 Boylston St

Boston, Ma 02116

12 Lakewood Park Road

Westminster, MA

Property Description

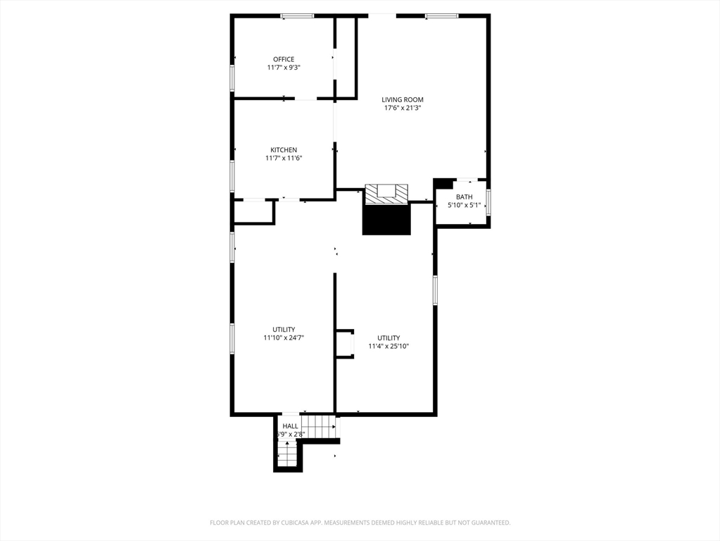
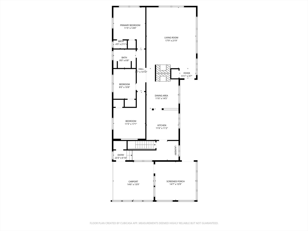
Perched along the shores of Wyman’s Pond, this rare waterfront offering features 200 +/- feet of water frontage and sweeping views across the water to Mount Wachusett. Known for its peaceful setting, recreation, and natural beauty, the pond offers boating, fishing, and true retreat-style living. Owned by the same family for 68+ years, the property includes three living spaces: a 3BR/1.5BA ranch, a one-bedroom apartment in the lower level, and a charming 1BR cottage—ideal for extended family, guests, or rental potential. The true highlight is the exceptional waterfront presence and panoramic year-round views. Enjoy sunrise over the lake and sunsets skies over Wachusett Mountain, with winter ski lights visible at night. Every season delivers unmatched scenery—from summer sparkle to fall foliage reflected on the water—offering rare lakefront living at its best. Easy access to Rte 2, 2A, 140, MBTA Wachusett Train Station, and Mt. Wachusett.

offered at

$900,000

  • Status: New
  • Listing ID: 73502424
  • Bedrooms: 5
  • Full Baths: 3
  • Half Baths: 1
  • Living Area: 2,760 sqft Convert
  • Lot Size: 87,120 sqft Convert

Additional Details

Zip Code: 01473

Parking

Garage Capacity: 5

Contact: LRG Boston at (617) 233-5800

LRGBOSTON.COM

355 Boylston St. Boston, MA 02116

Map

Photos