Luxury Real Estate Group Boston > Boston > 25 Stock St #25

LRG Boston

(617) 233-5800

355 Boylston St

Boston, Ma 02116

25 Stock St #25

Boston, MA

Property Description

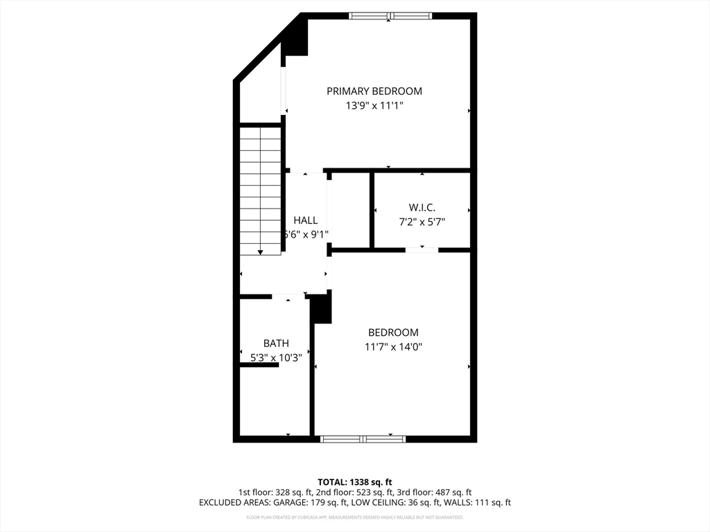
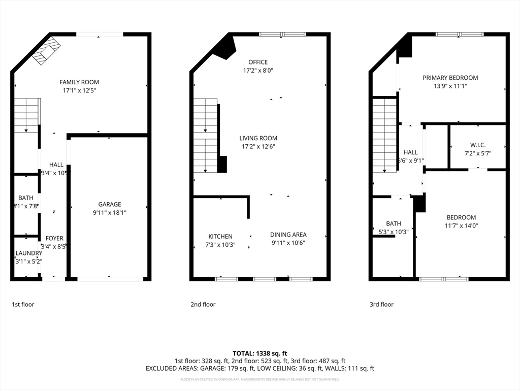
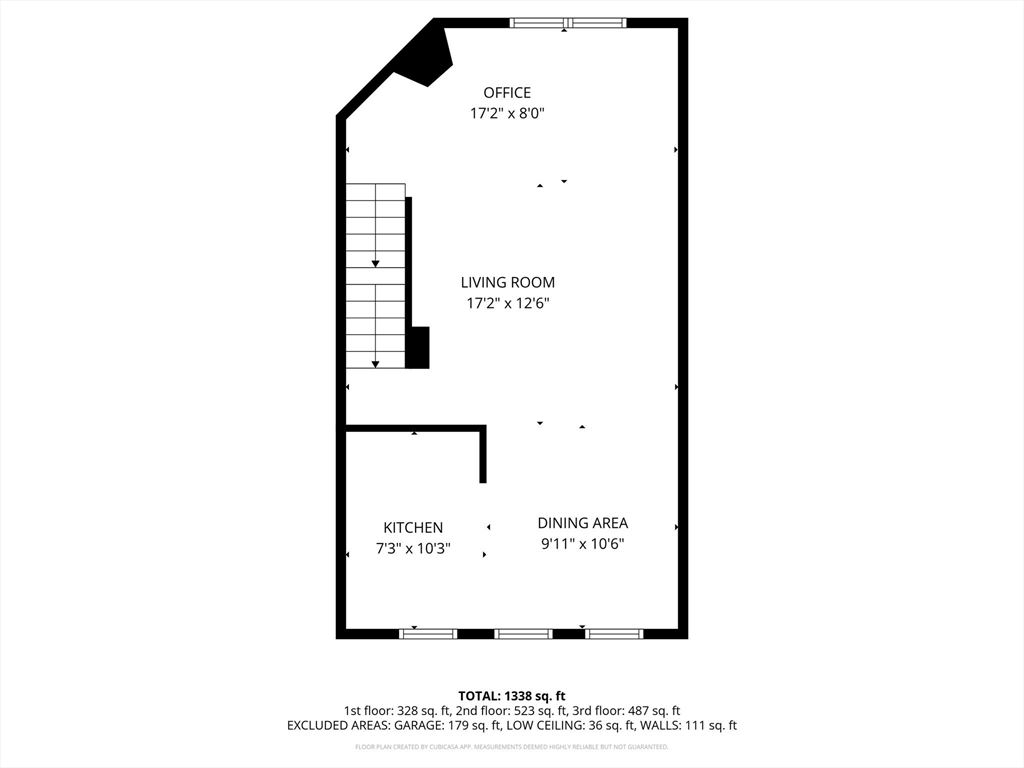
Gorgeous three-level townhouse in desirable Adams Village. This unit perfectly balances modern style with functional living, starting with a first-floor flex space featuring a cozy fireplace and direct walkout to your private back deck—ideal for a home office or den.This level also includes a contemporary half bath, laundry, and garage access. The second floor offers a spacious open-concept kitchen and living area with flowing hardwood floors, modern light fixtures, and ceiling fans. The kitchen is finished with white shaker cabinets, granite counters and convenient countertop seating—perfect for casual dining or entertaining. The third level includes two generous bedrooms and a full bath. This home is equipped with central AC and efficient gas heating for year-round comfort. Easy access to local favorites like Lucy’s American Tavern and Landmark Public House minutes from 93 and the Neponset River Parks.

offered at

$3,495

  • Status: New
  • Listing ID: 73502485
  • Bedrooms: 2
  • Full Baths: 1
  • Half Baths: 1
  • Living Area: 1,384 sqft Convert

Additional Details

Zip Code: 02122

Unit Level: 1

Parking

Garage Capacity: 3

Contact: LRG Boston at (617) 233-5800

LRGBOSTON.COM

355 Boylston St. Boston, MA 02116

Map

Photos