Luxury Real Estate Group Boston > West Boylston > 118 Worcester St

LRG Boston

(617) 233-5800

355 Boylston St

Boston, Ma 02116

118 Worcester St

West Boylston, MA

Property Description

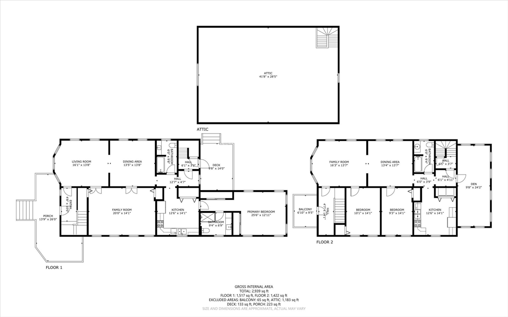
Opportunities like this don't come around often. Now is your chance to own a beautifully restored 2-family property in desirable business zoning, ideal for investors, owner-occupants, or small business owners. Deep roots & rich local history, thoughtfully utilized as both apartments & commercial space, including a candy store, chiropractor’s office, & more. Built in 1908, this classic Victorian blends timeless character with a full renovation completed in 2005, including updated windows, roof, heating, electrical, plumbing, insulation, central air, & HW flooring. Recent 1st floor addition features a spacious primary suite with en-suite bath. Both units offer bright, well-appointed living spaces filled with charm. 1st flr can easily convert back to 3 BR. Separate utilities. Walk-up attic provides expansion potential. 3 car garage offers great hobby space or rental income, plus off-street parking for 8+ cars. Conveniently located near the town center, schools, parks, restaurants, & more.

offered at

$849,900

  • Status: New
  • Listing ID: 73502906
  • Bedrooms: 4
  • Full Baths: 3
  • Living Area: 3,096 sqft Convert
  • Lot Size: 15,682 sqft Convert

Additional Details

Zip Code: 01583

Parking

Garage Capacity: 11

Contact: LRG Boston at (617) 233-5800

LRGBOSTON.COM

355 Boylston St. Boston, MA 02116

Map

Photos