Luxury Real Estate Group Boston > Dennis > 291 Old Wharf Rd #14

LRG Boston

(617) 233-5800

355 Boylston St

Boston, Ma 02116

291 Old Wharf Rd #14

Dennis, MA

Property Description

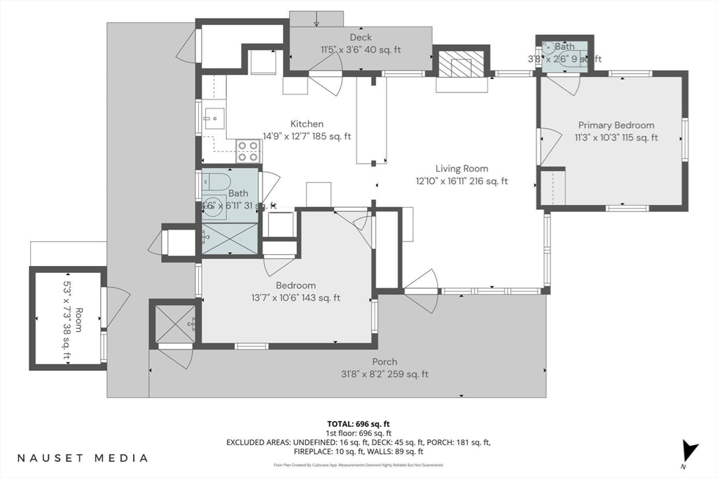
Just one minute to a sandy Nantucket Sound beach, this Turn-Key 2BR, 1.5BA cottage offers the perfect blend of coastal charm and modern comfort. Bright and inviting, the open floor plan features vaulted ceilings, skylights, an abundance of natural light throughout. The spacious living room has a cozy fireplace, cathedral ceiling, and a versatile loft area.The updated kitchen is equipped with granite countertops, white appliances,a dishwasher, breakfast bar, and the convenience of in-unit washer and dryer. Some upgrades include newer windows and roof, along with beautiful wood ceilings and durable laminate flooring that enhances the home's warmth. Step outside to enjoy two decks and a generous yard--perfect for relaxing or entertaining after a day at the beach. Ideally located near a variety of popular dining spots, this property offers both lifestyle and convenience.With a strong rental history and being offered mostly furnished, exceptional opportunity for a vacation or investment.

offered at

$495,000

  • Status: New
  • Listing ID: 73502959
  • Bedrooms: 2
  • Full Baths: 1
  • Half Baths: 1
  • Living Area: 608 sqft Convert

Additional Details

Area: Dennis Port

Zip Code: 02639

HOA Fee: $879

Unit Level: 1

Contact: LRG Boston at (617) 233-5800

LRGBOSTON.COM

355 Boylston St. Boston, MA 02116

Map

Photos