Luxury Real Estate Group Boston > West Springfield > 15 High Street

LRG Boston

(617) 233-5800

355 Boylston St

Boston, Ma 02116

15 High Street

West Springfield, MA

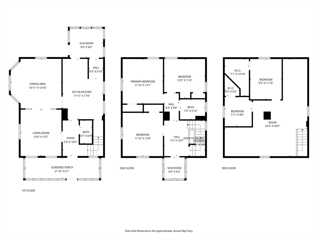
Property Description

There's Room to Grow in this Outstanding 5 Bedroom Vinyl Sided Colonial that's set on a pretty fenced backyard & conveniently located to all your needs! So many recent renovations includes APO: Stunning /NEW kitchen, updated flooring, fresh interior paint, new hot water tank, mostly updated electrical, gas heat w/Utica boiler, roof, siding, basement windows & mostly replacement windows! A relaxing front porch welcomes you into an inviting foyer opens to an expansive Living Rm-Dining Rm w/stylish vinyl flooring. The newly renovated kitchen features sleek white cabinets, quartz counters, stainless appliances, eating area w/access to a 3 season rm. An updated full bath w/tile flrs & shower completes the main level. The 2nd flr offers 3 generous bedrms w/roomy closets & updated full bath w/tile flrs, tub surround & new vanity w/granite top. A major bonus is the finished 3rd flr providing versatile & flex living space for 2-3 bedrms, family rm, office or den. Turn the Key to Home Happiness!

offered at

$339,900

  • Status: New
  • Listing ID: 73503129
  • Bedrooms: 5
  • Full Baths: 2
  • Living Area: 2,271 sqft Convert
  • Lot Size: 6,868 sqft Convert

Additional Details

Zip Code: 01089

Parking

Garage Capacity: 2

Contact: LRG Boston at (617) 233-5800

LRGBOSTON.COM

355 Boylston St. Boston, MA 02116

Map

Photos