Luxury Real Estate Group Boston > Monson > 241 Palmer Rd

LRG Boston

(617) 233-5800

355 Boylston St

Boston, Ma 02116

241 Palmer Rd

Monson, MA

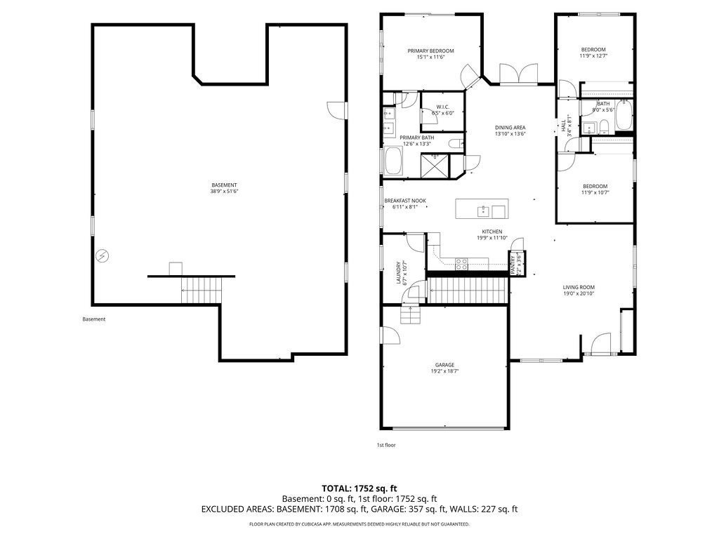
Property Description

Welcome to this stunning new construction completed in March 2026, set 250 feet back from the road on 2.16 private acres surrounded by open lawn and mature pine trees. Offering 1,852 sq ft of living space, this 3-bed, 2-bath home features soaring cathedral ceilings in the living and family rooms, flooding the space with natural light and warmth. The open layout includes a first-floor laundry, light-colored engineered hardwood floors, tall white kitchen cabinetry, and quartz countertops. The primary bedroom boasts a vaulted ceiling, while bathrooms are finished with tile floors. A large semi-finished basement offers flexible potential, complemented by a 2-car garage and a 521 sq ft patio perfect for entertaining. Built with energy efficiency in mind — fully insulated throughout, dual heating systems (electric & propane), central A/C, ERV ventilation system, and European triple-pane windows for superior insulation and sound reduction. Hardwired for surveillance cameras. See HERS rating f

offered at

$624,900

  • Status: New
  • Listing ID: 73503339
  • Bedrooms: 3
  • Full Baths: 2
  • Living Area: 1,852 sqft Convert
  • Lot Size: 94,089 sqft Convert

Additional Details

Zip Code: 01057

Parking

Garage Capacity: 6

Contact: LRG Boston at (617) 233-5800

LRGBOSTON.COM

355 Boylston St. Boston, MA 02116

Map

Photos