Luxury Real Estate Group Boston > Arlington > 44 Piedmont St

LRG Boston

(617) 233-5800

355 Boylston St

Boston, Ma 02116

44 Piedmont St

Arlington, MA

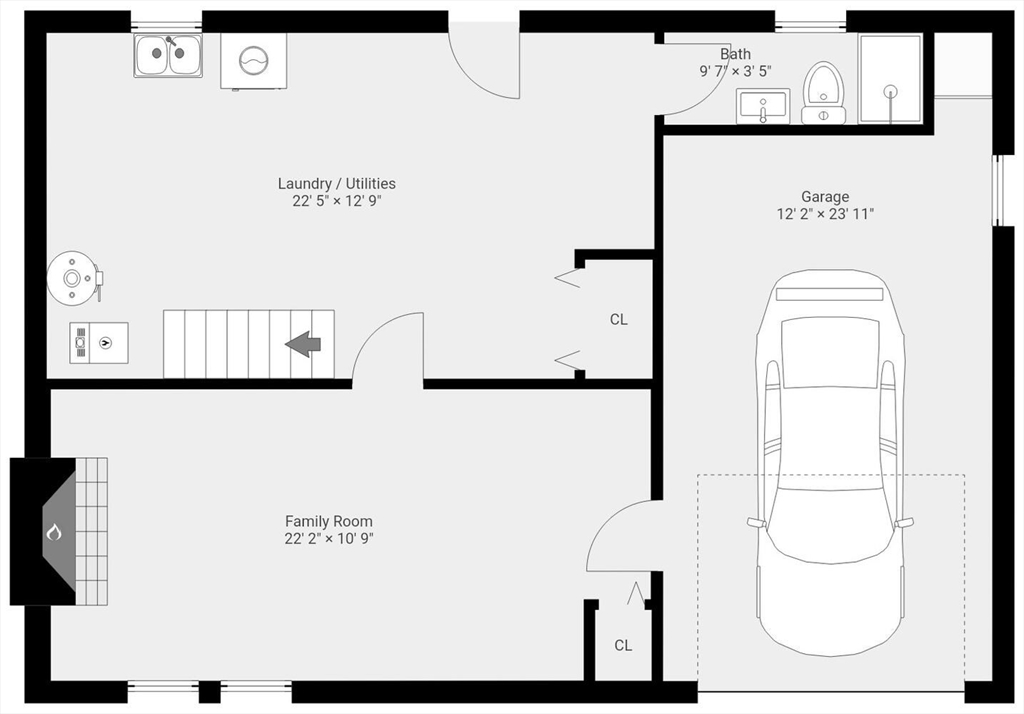
Property Description

A beloved family home for over 40 years, the sellers hope the new owners love 44 Piedmont St as much as they have! They’ve enjoyed the neighbors and neighborhood, the location, and of course the house itself. With the ease of one-level living, this 1950’s ranch offers an eat-in kitchen, living room with fireplace, 2 generous sized bedrooms, and full bath on the main floor. The finished lower level has brand new carpet (2026), and the fireplaced great room offers flexible options: family room, additional bedroom, exercise space, office, etc. There’s a second full bath on this level, a large laundry area, and access to the one-car garage. Just in time for the warm weather, the fenced yard has southwest exposure and provides a sunny respite for relaxing, gardening, and enjoying our New England spring. Located about a half mile to Mass Ave, there are shopping, dining, and transportation options just a few minutes away. Harvey replacement windows throughout, house is fully insulated.

offered at

$939,000

  • Listing ID: 73503623
  • Bedrooms: 2
  • Full Baths: 2
  • Living Area: 1,681 sqft Convert
  • Lot Size: 5,619 sqft Convert

Additional Details

Zip Code: 02476

Parking

Garage Capacity: 4

Contact: LRG Boston at (617) 233-5800

LRGBOSTON.COM

355 Boylston St. Boston, MA 02116

Map

Photos