Luxury Real Estate Group Boston > Harwich > 10 Essex Pl

LRG Boston

(617) 233-5800

355 Boylston St

Boston, Ma 02116

10 Essex Pl

Harwich, MA

Property Description

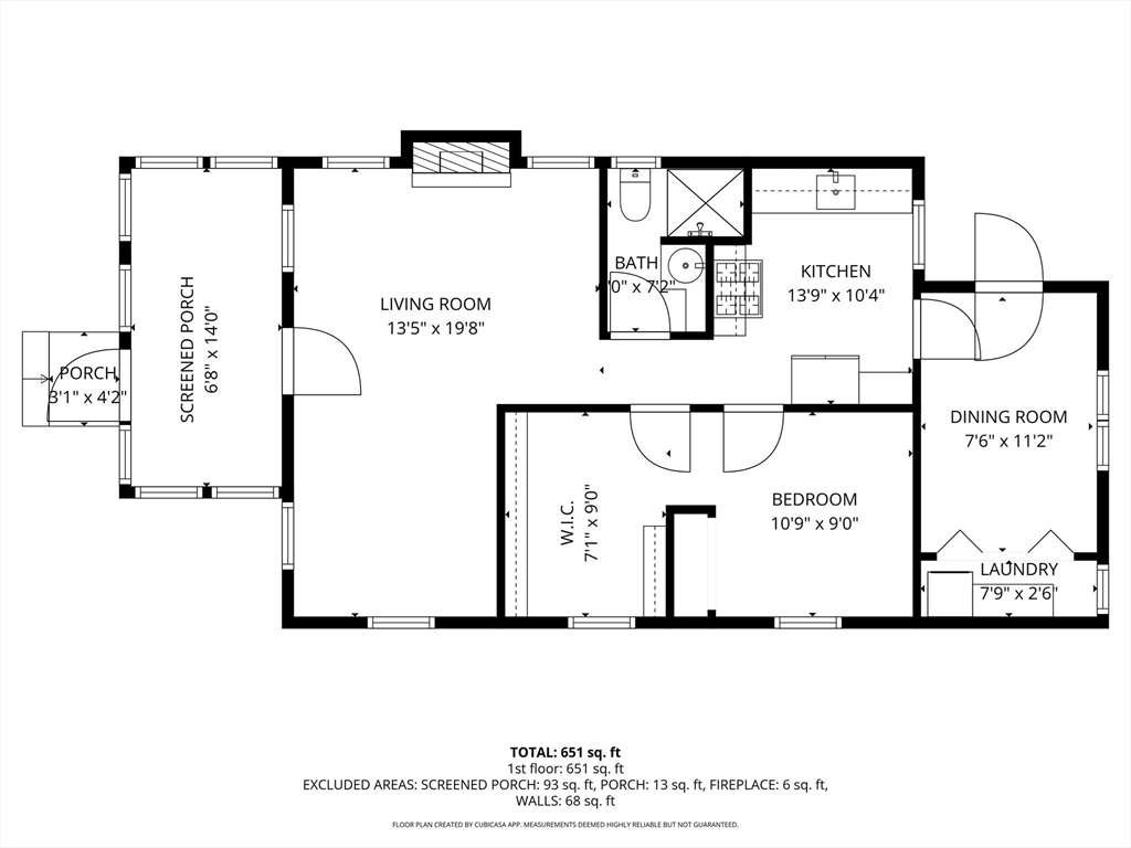
Located in the highly sought-after Campgrounds neighborhood of Harwich Port, 10 Essex Place offers a rare opportunity to own a piece of history. This cherished family home has been meticulously maintained and thoughtfully converted from a seasonal cottage into a comfortable year-round residence. Strategic additions, including a charming screened-in front porch and a rear dining area with laundry, have maximized the home's footprint while maintaining its coastal character. Currently configured as a one-bedroom home with a spacious walk-in closet, the layout can easily be returned to its original two-bedroom design or kept as a private retreat. The location is unbeatable, offering true walkability to both the sandy shores of Atlantic Avenue Beach and the vibrant shops and restaurants of downtown Harwich Port. For those looking for a larger vision, the adjacent property at 8 Essex Place is also for sale. An ambitious owner might consider purchasing both to create a significant double lot.

offered at

$799,000

  • Status: New
  • Listing ID: 73503884
  • Bedrooms: 3
  • Full Baths: 1
  • Living Area: 680 sqft Convert
  • Lot Size: 2,178 sqft Convert

Additional Details

Area: Harwichport

Zip Code: 02646

Parking

Garage Capacity: 1

Contact: LRG Boston at (617) 233-5800

LRGBOSTON.COM

355 Boylston St. Boston, MA 02116

Map

Photos