Luxury Real Estate Group Boston > Agawam > 208 School St

LRG Boston

(617) 233-5800

355 Boylston St

Boston, Ma 02116

208 School St

Agawam, MA

Property Description

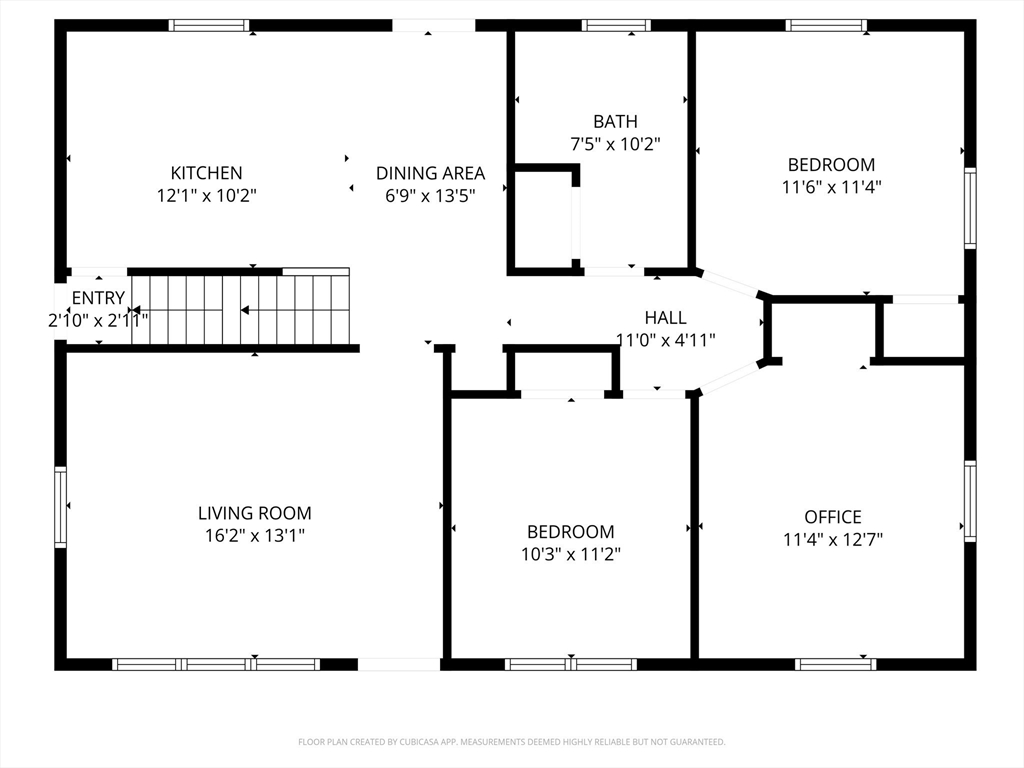
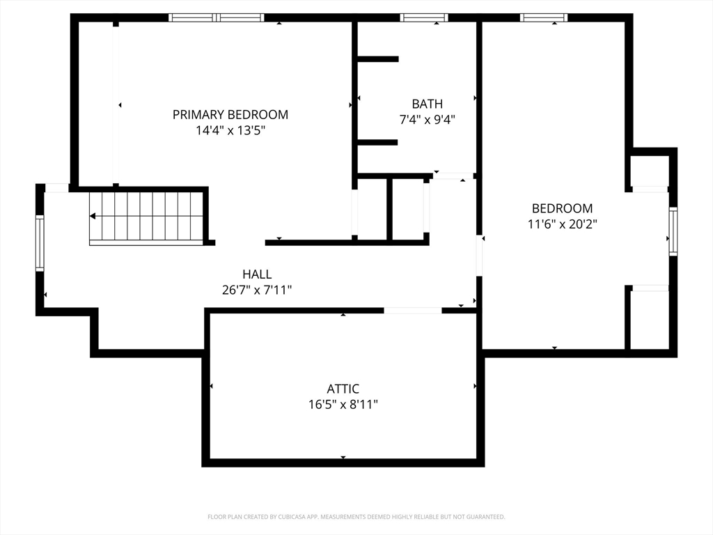
H&B by 6 pm on Wed (4/22). Exceptional, 5-bedroom home on desirable School Street! This move-in-ready property features a newer lifetime Gaf Roofing with plywood, vinyl siding, and energy-efficient Simonton windows. Enjoy a beautiful fenced-in yard and an oversized two-car garage. The updated eat-in kitchen offers granite countertops, tile backsplash, white cabinetry, and newer appliances. A spacious living room with crown molding and three hardwood-floor bedrooms highlight the main level, along with a renovated full bath featuring a tiled shower with a glass enclosure. The second floor includes 2 additional bedrooms, including a large primary with ample closet space, and a full bath with double vanity and tiled floors. Recent updates include mini-split systems, plumbing, and electrical. Second floor refreshed with new paint and vinyl plank flooring. Well renovated and meticulously maintained, this is a rare opportunity to own a spacious, updated 5-bedroom home at an exceptional value.

offered at

$420,000

  • Status: New
  • Listing ID: 73504118
  • Bedrooms: 5
  • Full Baths: 2
  • Living Area: 1,820 sqft Convert
  • Lot Size: 14,374 sqft Convert

Additional Details

Zip Code: 01001

Parking

Garage Capacity: 6

Contact: LRG Boston at (617) 233-5800

LRGBOSTON.COM

355 Boylston St. Boston, MA 02116

Map

Photos