Luxury Real Estate Group Boston > Barnstable > 1825 Main St

LRG Boston

(617) 233-5800

355 Boylston St

Boston, Ma 02116

1825 Main St

Barnstable, MA

Property Description

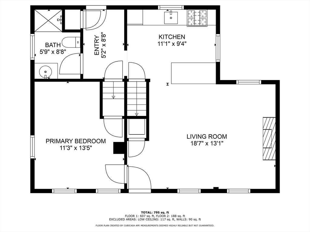
As seen on HGTV's Houses With History! This West Barnstable gem combines Cape charm with thoughtful updates. The kitchen stands out with custom copper and quartz counters, farmer's sink, and Bertazzoni gas range, while the spacious living room offers a cozy gas fireplace. The first-floor primary bedroom and stylish tiled bath make everyday living easy. Upstairs, two bedrooms with shiplap ceilings and custom rope beds capture classic Cape style. Unique details like painted wood floors, volcanic wood ceilings, brick-floored mudroom and handcrafted lighting add warmth and character. Step outside to a private yard with patio, whimsical whale mural, and an outdoor shower—the perfect spot after a day at the beach. Close to shops, trails, and sandy shores, this home is ideal for year-round living or as a proven Cape Cod rental.

offered at

$599,000

  • Status: New
  • Listing ID: 73504364
  • Bedrooms: 2
  • Full Baths: 1
  • Living Area: 1,002 sqft Convert
  • Lot Size: 7,405 sqft Convert

Additional Details

Area: West Barnstable

Zip Code: 02668

Parking

Garage Capacity: 3

Contact: LRG Boston at (617) 233-5800

LRGBOSTON.COM

355 Boylston St. Boston, MA 02116

Map

Photos