Luxury Real Estate Group Boston > Randolph > 66 Frederickson Dr

LRG Boston

(617) 233-5800

355 Boylston St

Boston, Ma 02116

66 Frederickson Dr

Randolph, MA

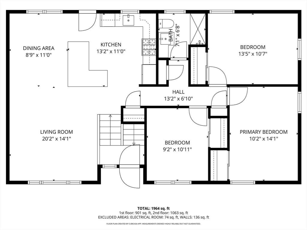
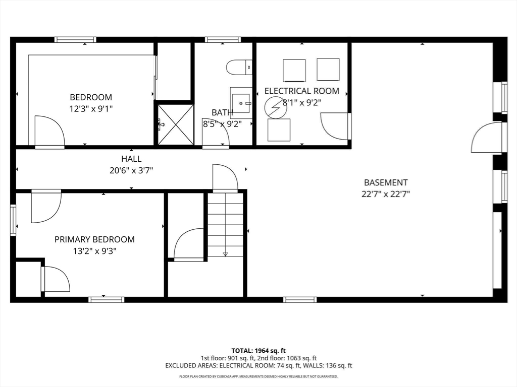
Property Description

Step inside this complete home makeover where modern style meets ultimate privacy. Tucked away at the end of a quiet cul-de-sac, this 5-bedroom, 2-bath retreat features a wide-open floor plan perfect for entertaining. The interior shines with fresh paint, new flooring, and elegant crown molding that adds a sophisticated touch to every room. The heart of the home is the stunning new kitchen, complemented by two beautifully re-imagined full baths. Beyond the cosmetic updates, you’ll find a brand-new roof and new windows. With five generous bedrooms, there is plenty of flexibility for a home office or guest space. The property stands out with its massive yard on a peaceful dead-end street. ADU potential, buyer to do own due diligence. Every detail has been refreshed and refined; this is a rare chance to own a move-in-ready home with space to breathe. Pictures are virtually staged.

offered at

$799,900

  • Status: New
  • Listing ID: 73504452
  • Bedrooms: 5
  • Full Baths: 2
  • Living Area: 2,038 sqft Convert
  • Lot Size: 27,841 sqft Convert

Additional Details

Zip Code: 02368

Parking

Garage Capacity: 4

Contact: LRG Boston at (617) 233-5800

LRGBOSTON.COM

355 Boylston St. Boston, MA 02116

Map

Photos