Luxury Real Estate Group Boston > Billerica > 29 Donald Rd

LRG Boston

(617) 233-5800

355 Boylston St

Boston, Ma 02116

29 Donald Rd

Billerica, MA

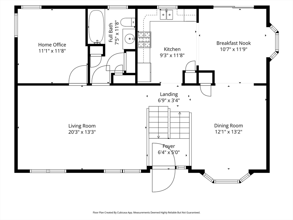
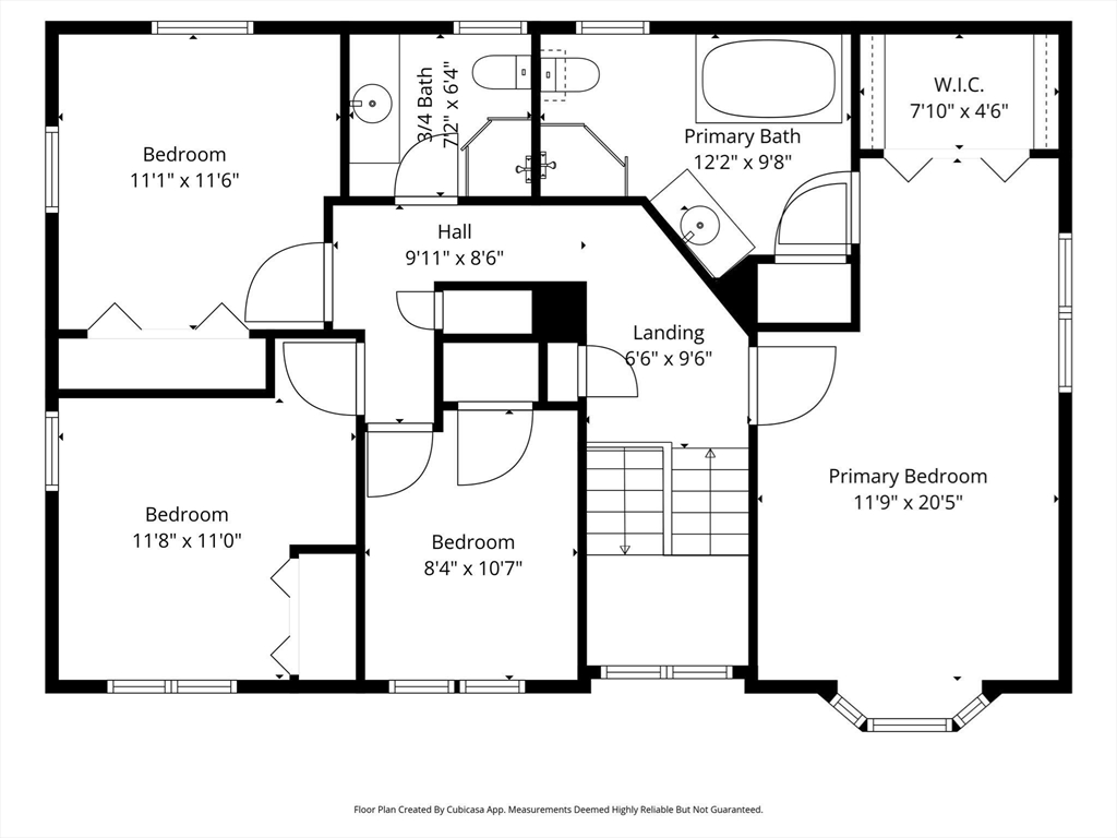
Property Description

Expanded colonial offering a surprising amount of living space across three finished levels, with a versatile layout well suited for multi generational living. The main level features flexible space with a full bath and potential for first floor bedroom or office, and access to a deck overlooking the yard, ideal for outdoor enjoyment. Upstairs offers 4 generously sized bedrooms, including a spacious primary suite with walk-in closet along with 2 full baths. The finished walkout lower level offers excellent flexibility with a separate entrance, ideal for extended living, guests, or work from home needs. Abundant storage throughout enhances functionality, including large closets, a storage shed, and expansive attic space. Major updates include a 2026 heating and cooling systems, 2022 solar panels for energy efficiency, a 2017 roof with premium shingles, refinished hardwood floors, new carpets, and Anderson windows. Set on an easy to maintain lot, this home offers exceptional versatility.

offered at

$824,900

  • Status: New
  • Listing ID: 73504702
  • Bedrooms: 5
  • Full Baths: 4
  • Living Area: 2,920 sqft Convert
  • Lot Size: 7,501 sqft Convert

Additional Details

Zip Code: 01821

Parking

Garage Capacity: 5

Contact: LRG Boston at (617) 233-5800

LRGBOSTON.COM

355 Boylston St. Boston, MA 02116

Map

Photos