Luxury Real Estate Group Boston > Burlington > 23 Terrace Hall Ave

LRG Boston

(617) 233-5800

355 Boylston St

Boston, Ma 02116

23 Terrace Hall Ave

Burlington, MA

Property Description

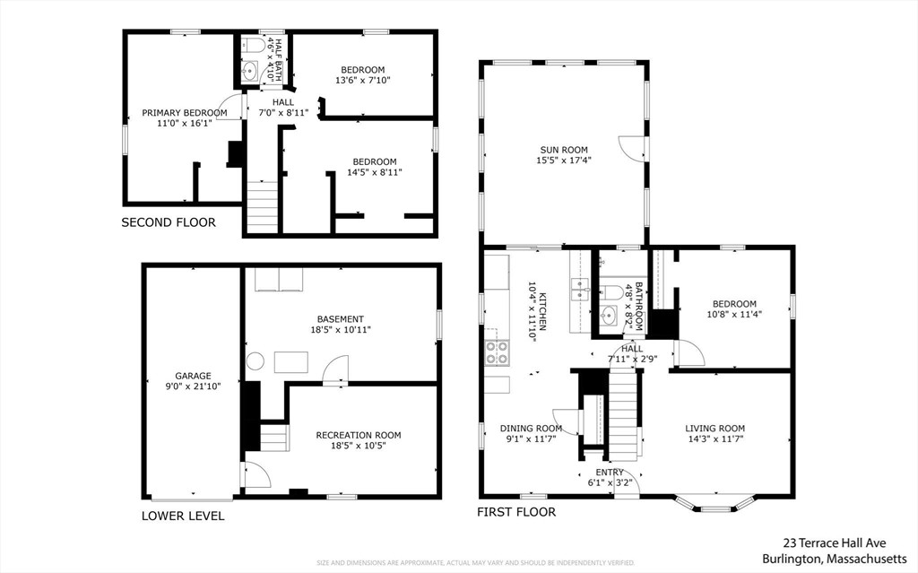
Attention builders and families looking to build equity in this fully habitable & functional home. Discover an incredible opportunity to own this 4-bedroom, 1.5-bath cape nestled in one of Burlington’s most convenient neighborhoods. This home offers plenty of space, a three-season porch, and a private backyard—perfect for relaxing or entertaining. While it needs some updates, there’s huge potential to build instant equity and make this home truly your own. Conveniently located close to major highways, shopping, and restaurants, you’ll enjoy easy access to everything Burlington has to offer. Whether you’re a first-time buyer, investor, or handy homeowner, this property is your chance to get into a great Burlington location at a price you can’t beat!

offered at

$569,000

  • Status: New
  • Listing ID: 73505065
  • Bedrooms: 4
  • Full Baths: 1
  • Half Baths: 1
  • Living Area: 1,503 sqft Convert

Additional Details

Zip Code: 01803

Parking

Garage Capacity: 3

Contact: LRG Boston at (617) 233-5800

LRGBOSTON.COM

355 Boylston St. Boston, MA 02116

Map

Photos