Luxury Real Estate Group Boston > West Bridgewater > 8 Hillside Ave

LRG Boston

(617) 233-5800

355 Boylston St

Boston, Ma 02116

8 Hillside Ave

West Bridgewater, MA

Property Description

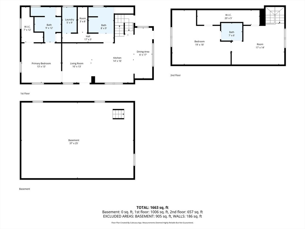
Move-in ready and lovingly maintained, this Cape-style home offers comfort, style, and convenience with a stunning first-floor primary bedroom featuring an updated en-suite bath with walk-in shower and a spacious walk-in closet, along with a bright, open layout that includes a beautiful living room, a kitchen with granite countertops, center island, and eat-in dining area, plus an additional bath; the second floor boasts a generously sized bedroom with its own updated full bath, walk-in shower, and oversized walk-in closet, as well as a versatile bonus room perfect for a home office, guest space, or additional bedroom. Whole house generator. Outside you’ll find a back deck ideal for relaxing or entertaining overlooking a great yard with a shed, all conveniently located near shopping, dining, and major routes. This home has a 3 bedroom septic system.

offered at

$599,900

  • Status: New
  • Listing ID: 73505324
  • Bedrooms: 2
  • Full Baths: 2
  • Half Baths: 1
  • Living Area: 1,683 sqft Convert
  • Lot Size: 19,602 sqft Convert

Additional Details

Zip Code: 02379

Parking

Garage Capacity: 4

Contact: LRG Boston at (617) 233-5800

LRGBOSTON.COM

355 Boylston St. Boston, MA 02116

Map

Photos