Luxury Real Estate Group Boston > Cambridge > 9 Dana St #41

LRG Boston

(617) 233-5800

355 Boylston St

Boston, Ma 02116

9 Dana St #41

Cambridge, MA

Property Description

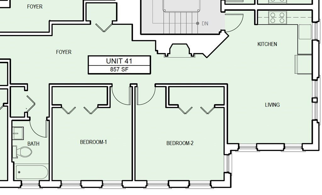
Introducing 9 Dana St, a beautiful collection of apartments centrally located between Harvard and Central Square in Cambridge. Recently renovated two-bedroom home with quality finishes and great natural light. Featuring custom architectural millwork and hardwood flooring throughout, a chef’s kitchen with quartz counters and stainless steel appliances, modern bath finishes with high-end chrome fixtures, common laundry and smart home technology including Mitsubishi mini-splits for heat and AC. Private storage units and bike storage included with rental. Area amenities include, Harvard University, Whole Foods, Tatte, Public transit, ample bars and restaurants and much more. Video tour available!

offered at

$3,900

  • Status: New
  • Listing ID: 73505330
  • Bedrooms: 2
  • Full Baths: 1
  • Living Area: 857 sqft Convert
  • Lot Size: 857 sqft Convert

Additional Details

Area: Harvard Square

Zip Code: 02138

Unit Level: 4

Contact: LRG Boston at (617) 233-5800

LRGBOSTON.COM

355 Boylston St. Boston, MA 02116

Map

Photos