Luxury Real Estate Group Boston > Waltham > 20 College Farm Rd

LRG Boston

(617) 233-5800

355 Boylston St

Boston, Ma 02116

20 College Farm Rd

Waltham, MA

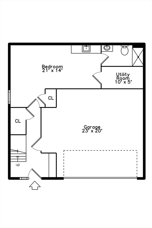
Property Description

Discover this high-quality 2023 new-construction colonial in Waltham’s desirable North Waltham locale near MacArthur Elementary. This 4-bed, 4.5-bath, 3,150 sq ft home offers an elegant open layout featuring a beautiful island kitchen with stone countertops and stainless appliances, a spacious living room with natural-gas fireplace and custom built-ins, and a formal dining room with slider leading to a private, fenced yard and entertainment area. Three second-floor bedrooms each include private full baths, while a flexible first-floor bedroom or office with its own full bath and kitchenette adds versatility for guests or generational living. Enjoy hardwood flooring throughout, recessed lighting, dual-zone gas heating and central air, plus a two-car garage and ample parking. Conveniently located near parks, Hardy Pond, shops, public transit, and offering quick access to Rte 128, Rte 2, and the Mass Pike—a perfect blend of comfort, quality, and commuter convenience.

offered at

$1,399,900

  • Status: New
  • Listing ID: 73506081
  • Bedrooms: 4
  • Full Baths: 4
  • Half Baths: 1
  • Living Area: 3,150 sqft Convert
  • Lot Size: 4,552 sqft Convert

Additional Details

Zip Code: 02451

Parking

Garage Capacity: 6

Contact: LRG Boston at (617) 233-5800

LRGBOSTON.COM

355 Boylston St. Boston, MA 02116

Map

Photos