Luxury Real Estate Group Boston > Newbury > 34 Central St 4 Madison

LRG Boston

(617) 233-5800

355 Boylston St

Boston, Ma 02116

34 Central St 4 Madison

Newbury, MA

Property Description

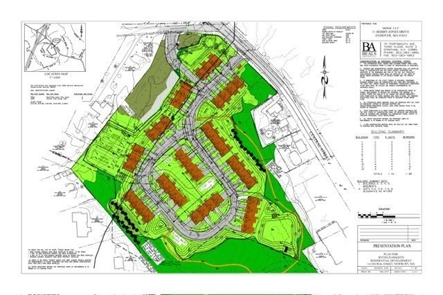
Welcome to Byfield Heights-where space, style, and New England charm come together effortlessly. Set across 10 scenic acres in Newbury, MA, this collection of 44 luxury townhomes offers one-, two-, and three-bdrm layouts. The “Madison” offers 2 bdrms, 2 FB, 2 HB and features hdwd floors, abundant natural light and a walk out lower level. The main living level has direct access to the one car garage and includes a spacious living room, a half bath, and a designer kitchen. The second level offers a spacious primary suite w/ a private en-suite bath, along with a second bdrm, full bath, & convenient laundry area. The lower level provides additional flexible living space, complete w/ a half bath, perfect for a home office, rec room, or guest area. With walking trails, recreation area, playground and only minutes from historic downtown Newburyport, Byfield Heights offers a place that feels just right in one of the North Shore’s most desirable settings.

offered at

$875,000

  • Status: New
  • Listing ID: 73506346
  • Bedrooms: 2
  • Full Baths: 2
  • Half Baths: 2
  • Living Area: 1,841 sqft Convert

Additional Details

Zip Code: 01922

Unit Level: 1

Parking

Garage Capacity: 2

Contact: LRG Boston at (617) 233-5800

LRGBOSTON.COM

355 Boylston St. Boston, MA 02116

Map

Photos