Luxury Real Estate Group Boston > Newbury > 34 Central St 30 Washing

LRG Boston

(617) 233-5800

355 Boylston St

Boston, Ma 02116

34 Central St 30 Washing

Newbury, MA

Property Description

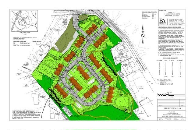
Welcome to Byfield Heights-where space, style, and New England charm come together effortlessly. Set across 10 scenic acres in Newbury, MA, this collection of 44 luxury townhomes offers one-, two-, and three-bdrm layouts. The “Washington” model is a thoughtfully designed three-level home offering a primary suite, one full bath, and two half baths. The main level features the designer kitchen w/high end finishes, ss appliances & quartz counters, spacious living room, half bath & home office. The upper level features the spacious primary suite with a private en-suite bath. The lower level offers additional flexible living space, a half bath, and direct access to the one car garage. With walking trails, recreation area, playground and only minutes from historic downtown Newburyport, Byfield Heights offers a place that feels just right in one of the North Shore’s most desirable settings.

offered at

$799,000

  • Status: New
  • Listing ID: 73506385
  • Bedrooms: 1
  • Full Baths: 1
  • Half Baths: 2
  • Living Area: 1,841 sqft Convert

Additional Details

Zip Code: 01922

Unit Level: 1

Parking

Garage Capacity: 2

Contact: LRG Boston at (617) 233-5800

LRGBOSTON.COM

355 Boylston St. Boston, MA 02116

Map

Photos