Luxury Real Estate Group Boston > Watertown > 24 Otis St #24

LRG Boston

(617) 233-5800

355 Boylston St

Boston, Ma 02116

24 Otis St #24

Watertown, MA

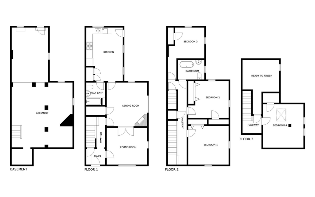
Property Description

Picture-perfect Queen Anne Victorian c.1886 featuring classic period details throughout. Exterior highlights include clapboard siding, fish-scale shingles, beautiful detail, a prominent front gable, plus a welcoming porch with turned columns and ornate trim. Inside offers 9’ ceilings on 1st and 2nd floors, abundant natural light, and a flowing layout centered around a classic period fireplace with decorative mantel and tiled hearth. Rich architectural details include stained-glass entry, French doors with transom, fluted casings, and wide yellow pine floors. Spacious eat-in kitchen with quartz counters adds modern appeal. Private garden, new roof, expansion potential on the lower level and 3rd floor, and a very special location complete this timeless home.

offered at

$1,275,000

  • Status: New
  • Listing ID: 73506507
  • Bedrooms: 4
  • Full Baths: 2
  • Living Area: 2,096 sqft Convert

Additional Details

Zip Code: 02472

HOA Fee: $390

Unit Level: 1

Parking

Garage Capacity: 2

Contact: LRG Boston at (617) 233-5800

LRGBOSTON.COM

355 Boylston St. Boston, MA 02116

Map

Photos