Luxury Real Estate Group Boston > Medford > 42-44 Burnside St

LRG Boston

(617) 233-5800

355 Boylston St

Boston, Ma 02116

42-44 Burnside St

Medford, MA

Property Description

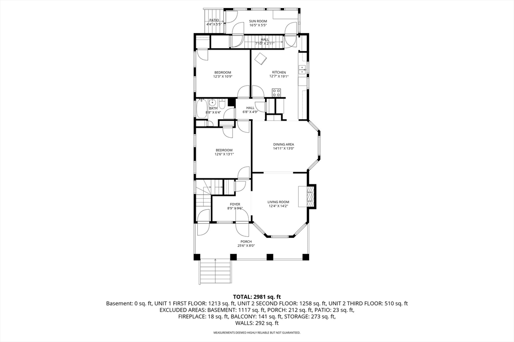
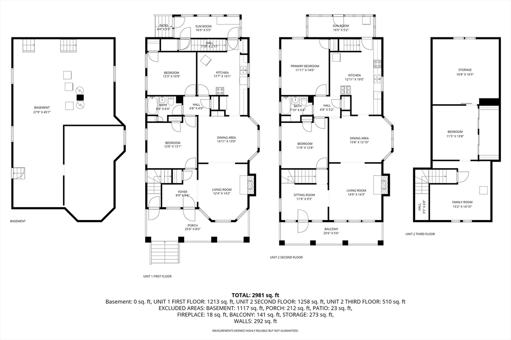
Room to grow and opportunity to shine in this spacious, solid 2 family home in a prime Medford location, ideal for an owner, occupant or investor. Built in 1920 and cherished by the same family for generations, this well-maintained property is full of character and ready for its next chapter. Offering 11 rooms, 5 bedrooms, and 2 full baths with over 3088 sq ft of living space. Unit 1 features 5 rooms, 2 bedrooms, and 1 bath with hardwood floors, eat in kitchen, living room, dining room with built in hutch. The second unit spans two levels with 3 bedrooms, living room, eat in kitchen, dining room with built in hutch, hardwood floors, and full bath. Additional highlights include open front porches and screened back porches, large unfinished basement, vinyl siding, 4 off street parking spaces, and a garage/storage. Excellent commuter location near Orange Line, Routes 93, 28, 60, and 16, with easy access to Wellington and Assembly Row. Come explore all this property has to offer.

offered at

$999,999

  • Status: New
  • Listing ID: 73506541
  • Bedrooms: 5
  • Full Baths: 2
  • Living Area: 3,088 sqft Convert
  • Lot Size: 4,975 sqft Convert

Additional Details

Zip Code: 02155

Parking

Garage Capacity: 6

Contact: LRG Boston at (617) 233-5800

LRGBOSTON.COM

355 Boylston St. Boston, MA 02116

Map

Photos