Luxury Real Estate Group Boston > Dracut > 5 Alder Street #5

LRG Boston

(617) 233-5800

355 Boylston St

Boston, Ma 02116

5 Alder Street #5

Dracut, MA

Property Description

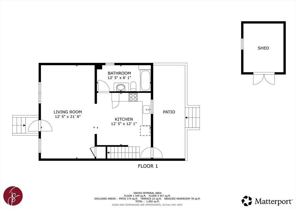
Available for immediate occupancy, this Duplex unit has 3 bedrooms, 1 full baths. Opened floor plan with a spacious Kitchen with stainless steel appliances, eat in kitchen. Open Floor plan -Dining room and Living room. Full Bath on first floor. Laundry Room basement. New flooring in all the bedrooms and hallway on second floor. Enjoy a semi-private fenced in yard with private off street parking. Good credit is required. No pets, No smoking.

offered at

$2,700

  • Status: New
  • Listing ID: 73507987
  • Bedrooms: 4
  • Full Baths: 2
  • Living Area: 1,002 sqft Convert
  • Lot Size: 99,999,999 sqft Convert

Additional Details

Zip Code: 01826

Unit Level: 1

Parking

Garage Capacity: 2

Contact: LRG Boston at (617) 233-5800

LRGBOSTON.COM

355 Boylston St. Boston, MA 02116

Map

Photos