Luxury Real Estate Group Boston > Northampton > 63 Lilly St

LRG Boston

(617) 233-5800

355 Boylston St

Boston, Ma 02116

63 Lilly St

Northampton, MA

Property Description

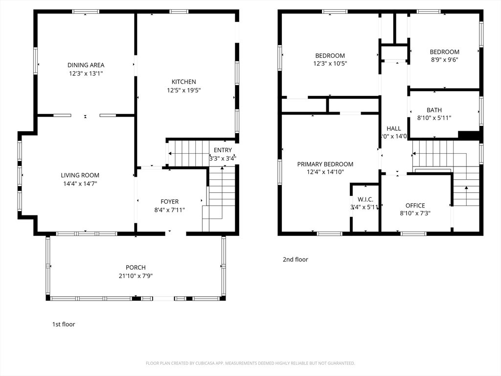
As sweet as can be! This American Foursquare exudes the charm of its era. Inviting you into the home is an alluring covered porch providing endless ways of enjoyment. A beautiful stained glass adorned front door greets you into a welcoming entryway featuring a classic turned staircase with artistic accents. Original hardware, 5 panel doors, and crown moulding decorate the home throughout. Gorgeous Fir hardwood floors lead you into a light-filled living room, sharing elegant built-ins with the cozy dining room. The spacious kitchen holds nice potential to shine with some updating. The second floor hosts three bedrooms, a comfortable bathroom, and an office/studio. The attic could be an excellent bonus space with the right finishing touches. A side porch allows for quick trips to the backyard, offering a delightful area for outdoor retreat, play, or entertaining. Located just outside the heart of Florence, you will find attractions and amenities galore. Come see for yourself!

offered at

$425,000

  • Status: New
  • Listing ID: 73508220
  • Bedrooms: 3
  • Full Baths: 1
  • Living Area: 1,696 sqft Convert
  • Lot Size: 6,586 sqft Convert

Additional Details

Area: Florence

Zip Code: 01062

Parking

Garage Capacity: 3

Contact: LRG Boston at (617) 233-5800

LRGBOSTON.COM

355 Boylston St. Boston, MA 02116

Map

Photos