Luxury Real Estate Group Boston > Stoneham > 84 Converse St

LRG Boston

(617) 233-5800

355 Boylston St

Boston, Ma 02116

84 Converse St

Stoneham, MA

Property Description

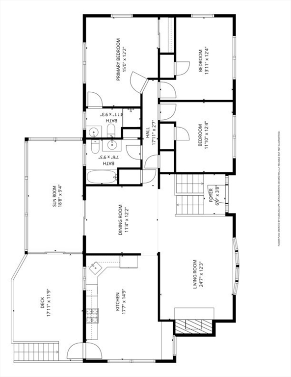
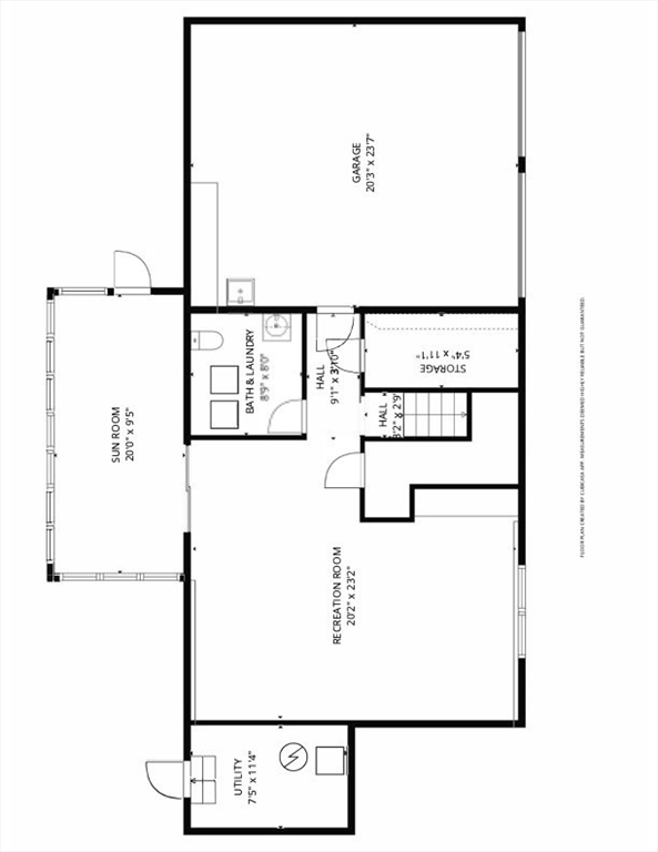
Bear Hill neighborhood - built in 1980 & lovingly maintained by one owner this home offers excellent living space w/ a generous size kitchen, dining room, living room w/ GAS fireplace & lower level family room, two three season rooms, en suite & so much more! The home provides excellent storage space & the large two car garage has a sink - great for someone looking for a workshop area! Easy highway access, about 1/2 mile to Bear Hill Golf Club, apx 1 mile to Shops at Redstone Plaza & Bus 550 as well as apx 1 mile to Wakefield Commuter Rail, Bus 137, Wakefield Farmers Market & Downtown Shops/Restaurants. Great savings on monthly expenses w/ well water for irrigation & solar panels that include a sizable credit to be transferred to buyers. This home is in move in condition while also allowing room to make updates to your liking & build equity as it is very well located on a picturesque street of fine homes on the border of Stoneham & Wakefield that also backs up to Winship Estates.

offered at

$985,000

  • Status: New
  • Listing ID: 73508340
  • Bedrooms: 3
  • Full Baths: 2
  • Half Baths: 1
  • Living Area: 2,101 sqft Convert
  • Lot Size: 19,502 sqft Convert

Additional Details

Zip Code: 02180

Parking

Garage Capacity: 8

Contact: LRG Boston at (617) 233-5800

LRGBOSTON.COM

355 Boylston St. Boston, MA 02116

Map

Photos