Luxury Real Estate Group Boston > Milton > 107 Central Ave

LRG Boston

(617) 233-5800

355 Boylston St

Boston, Ma 02116

107 Central Ave

Milton, MA

Property Description

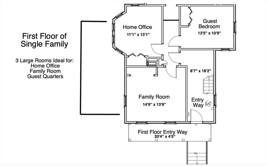
You've been looking for this, you just didn't know it existed. This one of a kind property delivers the best of both worlds: a fully reimagined single family home w an already built 1 bedroom apt w private entrance, living space, full kitchen, in unit laundry and full bath ready for an aging parent, an adult child or a rental income stream from day one. Zoned as a two family, the current owners reworked the footprint to create a more modern, livable use of space. The main house spans two floors: the first level features a guest suite and two flexible rooms ideal for a home office or tv room. Upstairs offers an updated eat in kitchen with laundry and porch, a comfortable living room, two bedrooms w shared bath, a primary suite and a bonus room for dining, bedroom, or gym. Situated right on the edge of the beloved Columbines neighborhood, Central Avenue trolley, the village shops, Steel & Rye, Turner's Pond, Glover Elementary, and Pierce Middle School are all footsteps away. Stop by!

offered at

$1,499,000

  • Status: New
  • Listing ID: 73508701
  • Bedrooms: 6
  • Full Baths: 3
  • Living Area: 3,147 sqft Convert
  • Lot Size: 18,522 sqft Convert

Additional Details

Zip Code: 02186

Parking

Garage Capacity: 8

Contact: LRG Boston at (617) 233-5800

LRGBOSTON.COM

355 Boylston St. Boston, MA 02116

Map

Photos