Luxury Real Estate Group Boston > Weymouth > 206 Tall Oaks Dr #F

355 Boylston St

Boston, Ma 02116

206 Tall Oaks Dr #F

Weymouth, MA

Property Description

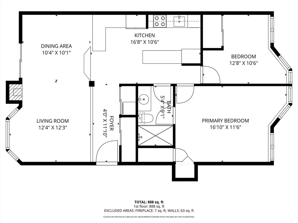
FIRST OH SAT. MAY 2ND 12-2. Lovely 2 bedroom condo at Magnolia Ridge III. Privately tucked away at the end of the complex, you will enjoy this tranquil setting overlooking the Bradford Torrey Bird Sanctuary. The redesigned kitchen features custom cabinetry with additional cabinets and additional Corian countertops, stainless steel appliances, Bosch DW, elec. stove,, new microwave, hardwood flooring. Step down to open LR/Dining Area with hwd flrs & slider access to deck w/ storage closet. newer walk-in shower, in unit laundry, mirrored closet doors in hallway that visually expand the living area and reflect light to brighten the unit, Primary BR has W/I closet, vinyl flr, 2nd BR w/vinyl floor & double closet w/access to crawlspace where heat exchanger is located. The complex is professionally managed, pet friendly, and close to highways, commuter rail, SS Hospital, shopping and walking trails .Enjoy summers at the pool. ***EXTRA BONUS!! This unit has a dedicated Tesla charger***

offered at

$394,900

  • Status: New
  • Listing ID: 73508805
  • Bedrooms: 2
  • Full Baths: 1
  • Living Area: 1,060 sqft Convert

Additional Details

Zip Code: 02190

HOA Fee: $373

Unit Level: 1

Parking

Garage Capacity: 2

Contact: at

LRGBOSTON.COM

355 Boylston St. Boston, MA 02116

Map

Photos