Luxury Real Estate Group Boston > Boston > 122 Aldrich St

LRG Boston

(617) 233-5800

355 Boylston St

Boston, Ma 02116

122 Aldrich St

Boston, MA

Property Description

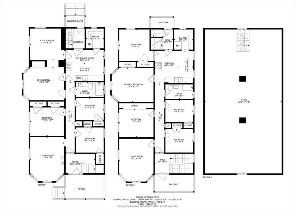
Location Location!!!! Great opportunity for investors or owner-occupants! alike. This multi-family is ready for its next phase. Whether you're looking to renovate your dream home or seeking a profitable investment, this property has incredible potential. The units are very spacious. Unit 1 has three bedrooms, while Unit 2 has four bedrooms and the potential to finish the attic space. Both units have front and back decks and a Large basement with plenty of storage. Its prime location, right off the West Roxbury Parkway, makes it a real find in Roslindale.

offered at

$925,000

  • Status: New
  • Listing ID: 73509103
  • Bedrooms: 7
  • Full Baths: 2
  • Living Area: 2,616 sqft Convert
  • Lot Size: 4,250 sqft Convert

Additional Details

Area: Roslindale

Zip Code: 02131

Contact: LRG Boston at (617) 233-5800

LRGBOSTON.COM

355 Boylston St. Boston, MA 02116

Map

Photos