Luxury Real Estate Group Boston > Medford > 89 Boston Ave

LRG Boston

(617) 233-5800

355 Boylston St

Boston, Ma 02116

89 Boston Ave

Medford, MA

Property Description

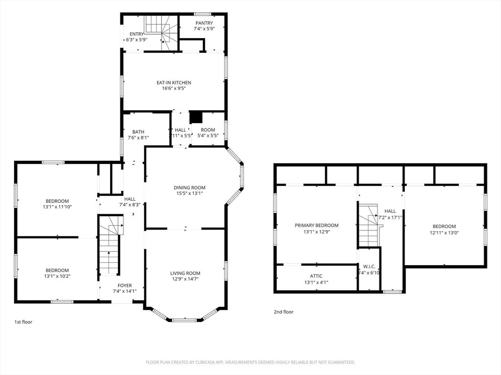
Large 2-family home in highly sought after West Medford! Situated on a corner lot. The first floor unit features 3 bedrooms and 1 bath. The upper unit spans two levels, featuring 2 bedrooms on the main level, an enclosed porch and a finished third level with 2 additional bedrooms. Property includes a 2-car detached garage and driveway parking for up to 4 vehicles. Excellent investment opportunity in a prime location with strong rental demand. Updates include a roof approximately 6 yrs old, 2 newer hot water heaters and oil tanks, one furnace replaced approx. 5 yrs ago, providing a solid foundation for future improvements. Bring your vision and modernize the interiors and maximize your rental income or build equity. Conveniently located near I-93, Mystic River walking trails, parks, shopping, dining, public transportation and the West Medford commuter rail, offering easy access to Boston and surrounding areas. A commuters dream! Property being sold as-is. Showings begin Friday 4-6pm.

offered at

$1,200,000

  • Status: New
  • Listing ID: 73509409
  • Bedrooms: 7
  • Full Baths: 2
  • Living Area: 3,601 sqft Convert
  • Lot Size: 7,177 sqft Convert

Additional Details

Area: West Medford

Zip Code: 02155

Parking

Garage Capacity: 6

Contact: LRG Boston at (617) 233-5800

LRGBOSTON.COM

355 Boylston St. Boston, MA 02116

Map

Photos