Luxury Real Estate Group Boston > Stoughton > 475 Pleasant St

LRG Boston

(617) 233-5800

355 Boylston St

Boston, Ma 02116

475 Pleasant St

Stoughton, MA

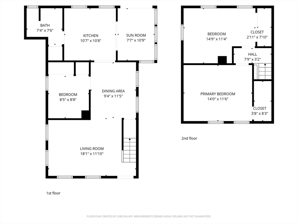
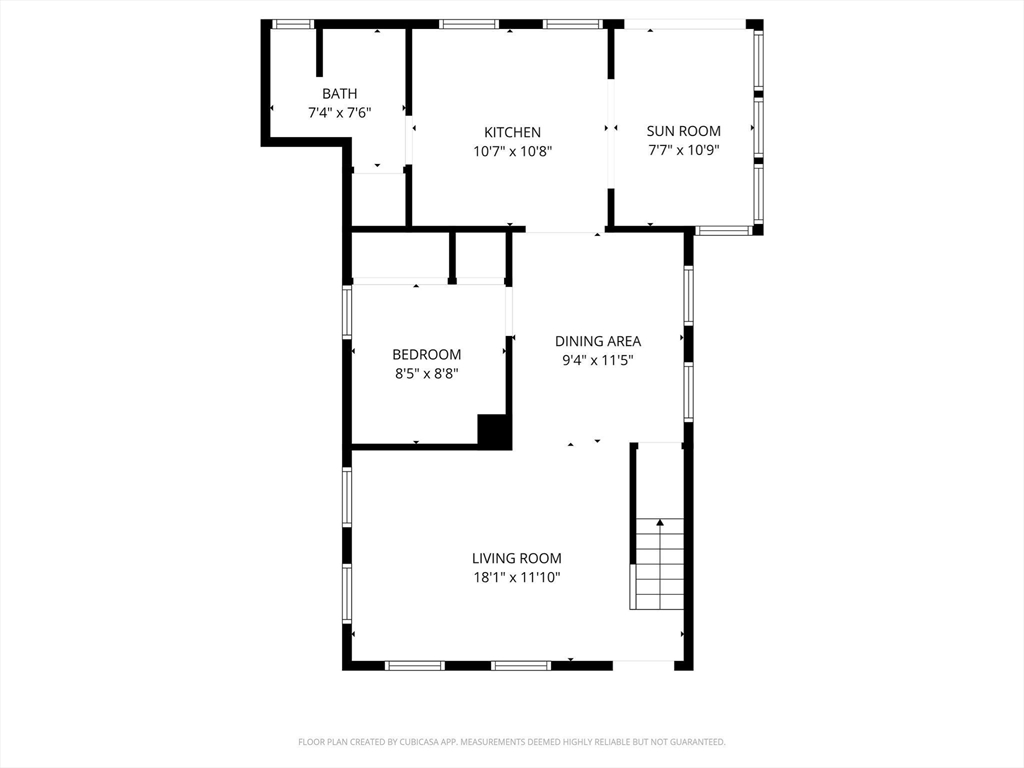
Property Description

Welcome to 475 Pleasant Street, where move-in ready meets opportunity. This thoughtfully updated three-bedroom home sits on nearly half an acre near the Stoughton/Canton line, offering smart, well-planned living space with room to make it your own. Inside, a bright and inviting living room flows seamlessly into a dedicated dining area and open kitchen overlooking the backyard, creating a layout that lives bigger than its footprint. A convenient first-floor bathroom and laundry are nearby, and a flexible first-floor bedroom is ideal for a home office or guest space, while two additional well-sized bedrooms are located upstairs. Enjoy your morning coffee in the sunroom or relax on the hardscape patio beside the expansive fenced yard. The full basement provides valuable storage, and with major updates already completed, including a newer roof, siding, windows, and upgraded 200-amp electrical, the heavy lifting is done. A rare find at this price point - all that's left to do is move in.

offered at

$515,000

  • Status: New
  • Listing ID: 73509501
  • Bedrooms: 3
  • Full Baths: 1
  • Living Area: 1,006 sqft Convert
  • Lot Size: 19,471 sqft Convert

Additional Details

Zip Code: 02072

Parking

Garage Capacity: 3

Contact: LRG Boston at (617) 233-5800

LRGBOSTON.COM

355 Boylston St. Boston, MA 02116

Map

Photos