Luxury Real Estate Group Boston > Cambridge > 55 Plymouth St #4

LRG Boston

(617) 233-5800

355 Boylston St

Boston, Ma 02116

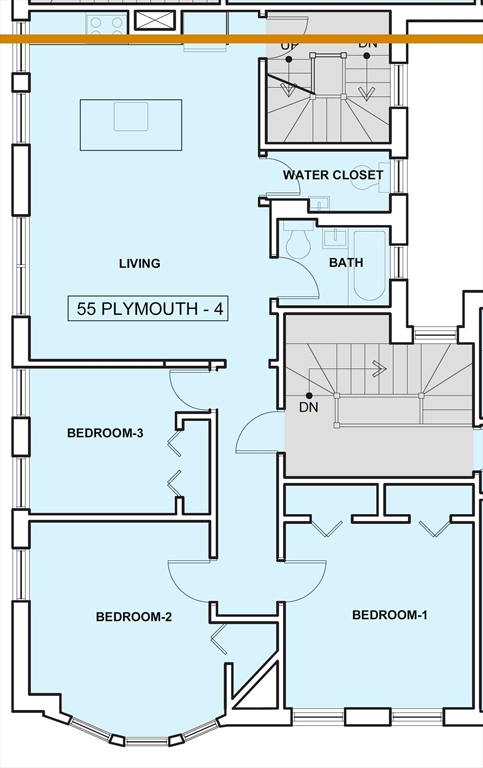
55 Plymouth St #4

Cambridge, MA

Property Description

Beautifully renovated and centrally located between Kendall and Inman Square in Cambridge. This spacious three bedroom home offers single-floor living with quality and convenience abound. Featuring custom architectural millwork and hardwood flooring throughout, a chef’s kitchen with quartz counters and stainless steel appliances, modern bath finishes with high-end chrome fixtures, common laundry and smart home technology including Mitsubishi mini-splits for heat and AC. Area amenities include, Whole Foods, Tatte, The Landmark Theater, Public Transit and much more.

offered at

$4,000

  • Status: New
  • Listing ID: 73509526
  • Bedrooms: 3
  • Full Baths: 2
  • Living Area: 890 sqft Convert
  • Lot Size: 890 sqft Convert

Additional Details

Area: Kendall Square

Zip Code: 02141

Unit Level: 3

Contact: LRG Boston at (617) 233-5800

LRGBOSTON.COM

355 Boylston St. Boston, MA 02116

Map

Photos