Luxury Real Estate Group Boston > Sandwich > 117 Route 130 #1

LRG Boston

(617) 233-5800

355 Boylston St

Boston, Ma 02116

117 Route 130 #1

Sandwich, MA

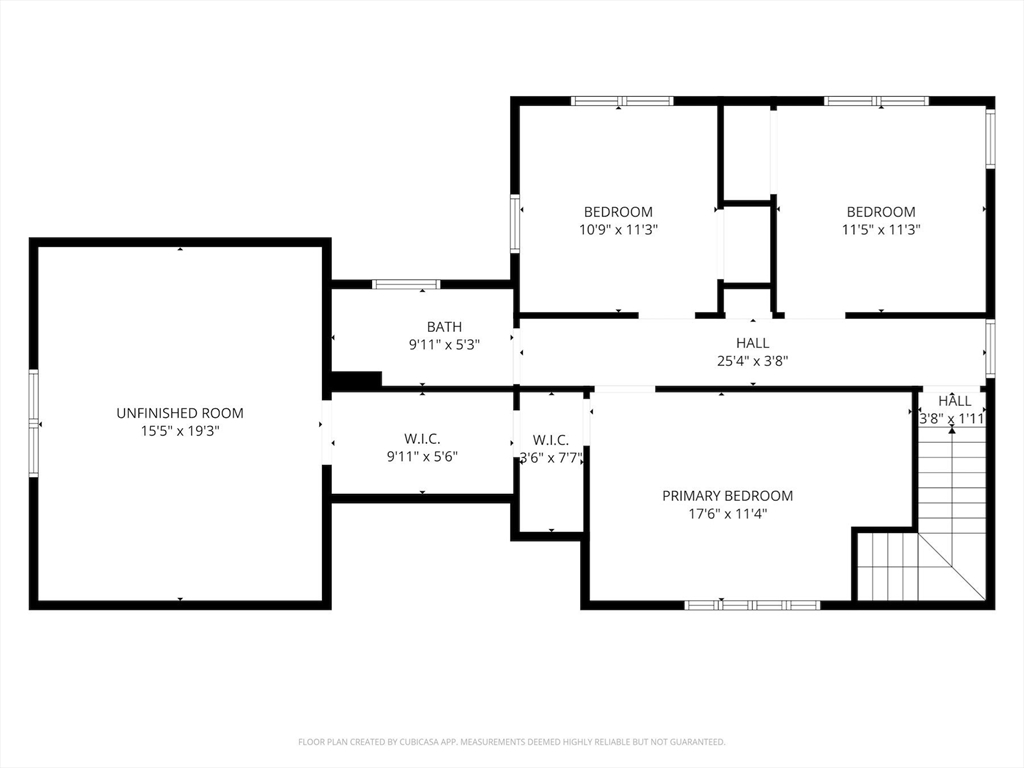
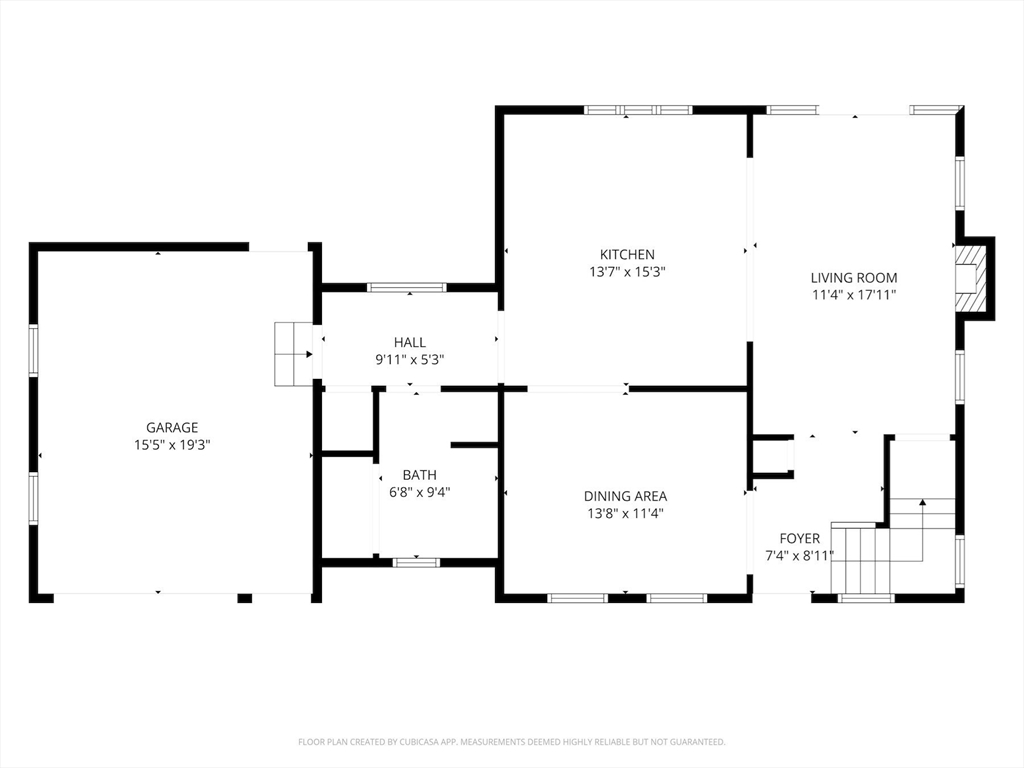
Property Description

This property presents a rare opportunity for experienced contractors, investors, or builders to reimagine a home in the Forestdale area of Sandwich. Set on a private, wooded site, this 3-bedroom, 2-bath, 1,663 sq ft home is located within a condominiumized parcel with exclusive-use area. The property requires substantial renovation or redevelopment and is likely not eligible for conventional financing--cash or specialized financing expected. This is not a cosmetic project and is ideal for buyers familiar with construction, permitting, and condominium land ownership. Conveniently located near Route 130, Sandwich Village, Mashpee Commons, golf, pond beaches, and conservation areas, offering strong upside in a desirable Upper Cape location with easy access to Route 6. Sold strictly as-is. Buyer to perform due diligence. NO DRIVE BYS PLEASE.

offered at

$399,900

  • Status: New
  • Listing ID: 73509553
  • Bedrooms: 3
  • Full Baths: 2
  • Living Area: 1,663 sqft Convert

Additional Details

Area: Forestdale

Zip Code: 02644

Unit Level: 1

Parking

Garage Capacity: 6

Contact: LRG Boston at (617) 233-5800

LRGBOSTON.COM

355 Boylston St. Boston, MA 02116

Map

Photos