Luxury Real Estate Group Boston > Lexington > 39 Greenwood St

LRG Boston

(617) 233-5800

355 Boylston St

Boston, Ma 02116

39 Greenwood St

Lexington, MA

Property Description

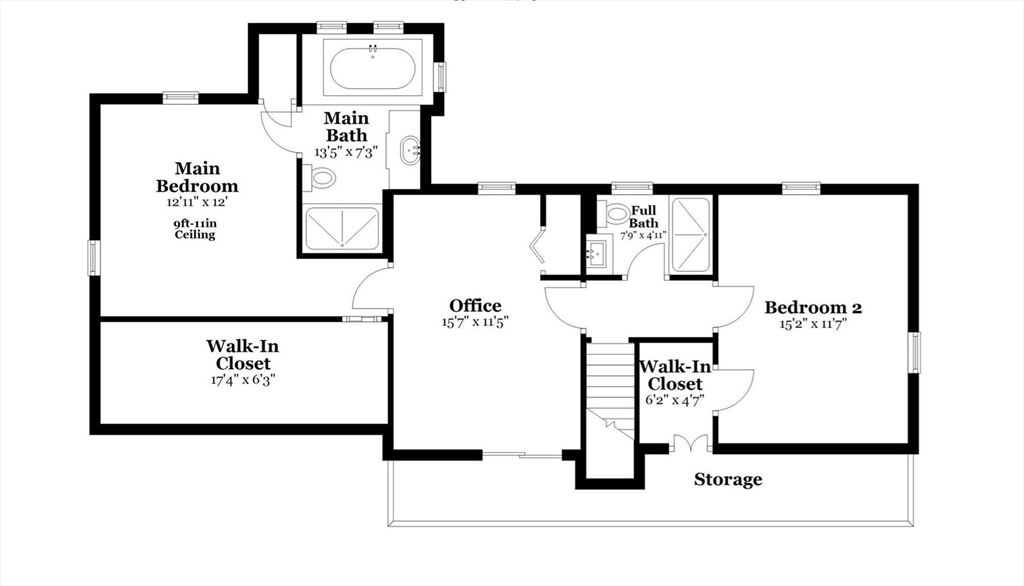
Step inside this charming, expanded Cape set on a picturesque street in one of Lexington’s most sought-after neighborhoods, known for its strong sense of community. The main level features a spacious family room with picture windows overlooking the backyard, open to a kitchen with adjoining dining area and direct access to a bright three-season sunroom. It includes a separate living room with a gas fireplace, along with a flexible first-floor bedroom and full bathroom ideal for guests or multigenerational living. The finished lower level adds space for a playroom, gym, or office. Upstairs includes a primary suite with a vaulted ceiling and a beautiful ensuite bath, plus two additional bedrooms and a renovated full bathroom. 2025 updates include a heat pump, bathroom renovation, refinished hardwood floors in select rooms, and interior/exterior paint. Enjoy access to top-rated schools, conservation trails, and town center. Text listing agent with questions. Offers due Tuesday at 4pm.

offered at

$1,375,000

  • Status: New
  • Listing ID: 73510026
  • Bedrooms: 4
  • Full Baths: 3
  • Living Area: 2,398 sqft Convert
  • Lot Size: 10,000 sqft Convert

Additional Details

Zip Code: 02421

Parking

Garage Capacity: 6

Contact: LRG Boston at (617) 233-5800

LRGBOSTON.COM

355 Boylston St. Boston, MA 02116

Map

Photos