Luxury Real Estate Group Boston > Plymouth > 28 Manomet Beach Blvd

LRG Boston

(617) 233-5800

355 Boylston St

Boston, Ma 02116

28 Manomet Beach Blvd

Plymouth, MA

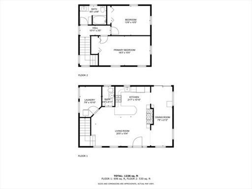
Property Description

Stunning coastal retreat in highly desirable Manomet Beach Shores with deeded private beach rights and just a short walk to the sand. This beautifully maintained 3-bedroom, 1.5-bath home offers the perfect blend of coastal elegance, comfort, and year-round living. Inside, enjoy gleaming hardwood floors and an updated kitchen with quartz countertops and modern finishes. Efficient electric heat pumps provide both heating and A/C for year-round comfort. The inviting living room features a cozy fireplace, perfect for relaxing evenings. First-floor laundry adds convenience. Sliding doors lead to a fully fenced, professionally landscaped backyard—ideal for entertaining, grilling, and gathering after a day at the beach. Whether you’re searching for a primary residence or a vacation getaway, this rare opportunity offers luxury, location, and lifestyle in one exceptional property.

offered at

$689,000

  • Status: New
  • Listing ID: 73510183
  • Bedrooms: 3
  • Full Baths: 1
  • Half Baths: 1
  • Living Area: 1,320 sqft Convert
  • Lot Size: 5,227 sqft Convert

Additional Details

Area: Manomet

Zip Code: 02360

HOA Fee: $120

Parking

Garage Capacity: 4

Contact: LRG Boston at (617) 233-5800

LRGBOSTON.COM

355 Boylston St. Boston, MA 02116

Map

Photos